| ID: | 73369 |
|---|---|
| MLS ID: | 24664417 |
| MLS Nubmer: | R2709380 |
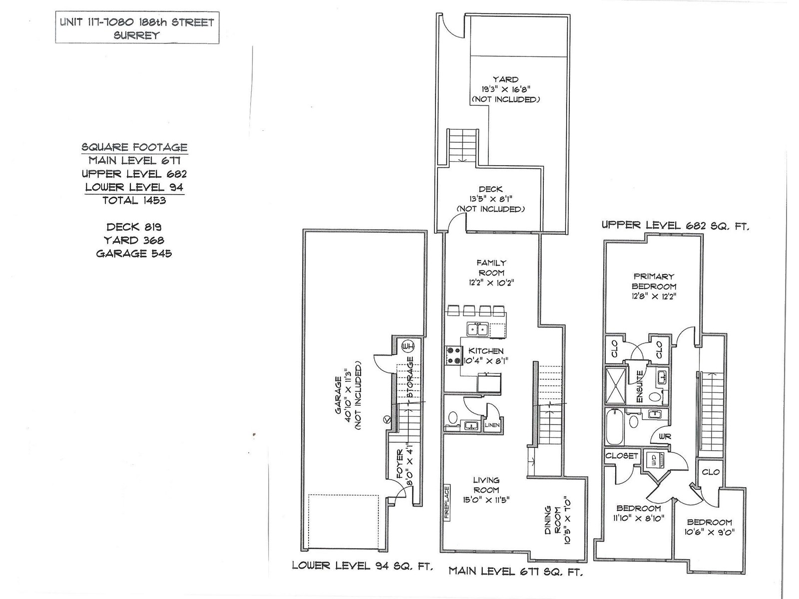
| description: | Immaculate Clayton Heights townhome. This home is 1453 square feet with 3 bedrooms, 2.5 baths and is located on the quiet side of this complex backing onto a pathway. You'll love the layout. It is open, yet has a separation of the 2 main living areas! With a family room off your fully equipped modern kitchen & access to your outdoor balcony & fenced yard. Perfect for pets & kids! Quartz counters, modern stainless appliances, this home is only 2 years young! Enjoy entertaining in the spacious dining area, overlooking your living room with a stunning fireplace. Upstairs are 3 good sized bedrooms. The master has it's own private ensuite and the kids can share the 2nd bathroom. Below is a tandem garage with extra room at the back for lots of storage or a gym? Walk to schools, the dog park, nearby shopping & restaurants. Great community. Showings by appointment any time. Open house Sat. July 16 1-4pm. |
| address: | 117 7080 188 STREET |
| postal code: | V4N6T5 |
| city: | Surrey |
| latitude: | 49.13127080 |
| longitude: | -122.70136730 |
| constructed_date: | 2020 |
| type: | Row / Townhouse |
| sub_type: | Single Family |
| size_interior: | 1453 sqft |
| architectural_style: | 3 Level, Other |
| construction_style_attachment: | Attached |
| bedrooms: | 3 |
| bathrooms: | 3 |
| fireplace_total: | 1 |
| heating_type: | Baseboard heaters, (Electric) |
| storeys: | 3 |
| basement_type: | None |
| parking_type: | Garage |
| parking_space_total: | 2 |
| fixtures: | Drapes/Window coverings |
| appliances: | Washer, Dryer, Refrigerator, Stove, Dishwasher, Garage door opener, Microwave |
| utility_type: | Electricity (Available), Sewer (Available), Sewer Connected (Available), Water (Available) |