| ID: | 73275 |
|---|---|
| MLS ID: | 24663313 |
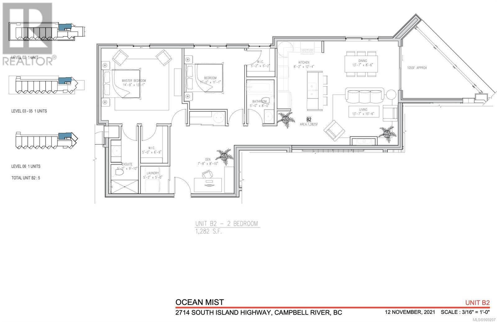
| MLS Nubmer: | 909207 |
| description: | Floor Plan B2; 1282 sq ft 2 bed 2 bath - These units are Northeast facing and are a spectacular offering. # 609 has a lovely private patio on the top of the building. These condos are all thoughtfully designed and have the modern luxury level finishes. 2 different finishing schedules to choose from, appliance package included, heat pump forced air, gas fireplace and gas bbq outlets, underground parking, electric car charging stations....and the list goes on. Don't miss out and get in on this lifestyle. Easy living and close to everything...including the ocean! Rentals and pets are allowed. Expected completion July 2023. |
| address: | 609 2714 Island Hwy S |
| postal code: | V9W1C7 |
| city: | Campbell River |
| latitude: | 49.96417745 |
| longitude: | -125.20992838 |
| constructed_date: | 2022 |
| type: | Apartment |
| sub_type: | Single Family |
| size_interior: | 1282 sqft |
| bedrooms: | 2 |
| bathrooms: | 2 |
| fireplace_total: | 1 |
| heating_type: | Forced air, Heat Pump |
| cooling_type: | Air Conditioned |
| parking_type: | Underground |
| parking_space_total: | 50 |
| view_type: | Mountain view, Ocean view |
| features: | Southern exposure, Other, Marine Oriented |
| community_features: | Pets Allowed With Restrictions, Family Oriented |