SnapRealty.ca
Back
ID: 72945
MLS ID: 24660363
MLS Nubmer: 909206
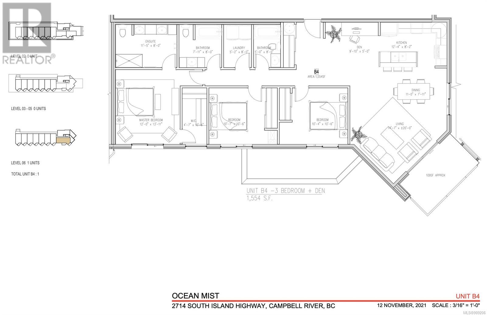
description: Floor plan B4 1554 sq ft 3 bed 3 bath – South facing, front of building with amazing ocean and mountain views. 601 balcony is 109 sq ft. These condos are all thoughtfully designed and have the modern luxury level finishes. 2 different finishing schedules to choose from, appliance package included, heat pump forced air, gas fireplace and gas BBQ outlets, underground parking, electric car charging station....and the list goes on. Don't miss out and get in on this lifestyle. Easy living and close to everything...including the ocean! Rentals and pets are allowed. Expected completion July 2023
address: 601 2714 Island Hwy S
postal code: V9W1C7
city: Campbell River
latitude: 49.96413605
longitude: -125.20990692
constructed_date: 2022
type: Apartment
sub_type: Single Family
size_interior: 1554 sqft
bedrooms: 3
bathrooms: 3
fireplace_total: 1
heating_type: Forced air, Heat Pump
cooling_type: Central air conditioning
parking_type: Underground
parking_space_total: 50
features: Southern exposure, Other, Marine Oriented
community_features: Pets Allowed With Restrictions, Family Oriented