SnapRealty.ca
Back
ID: 72588
MLS ID: 24658248
MLS Nubmer: 908820
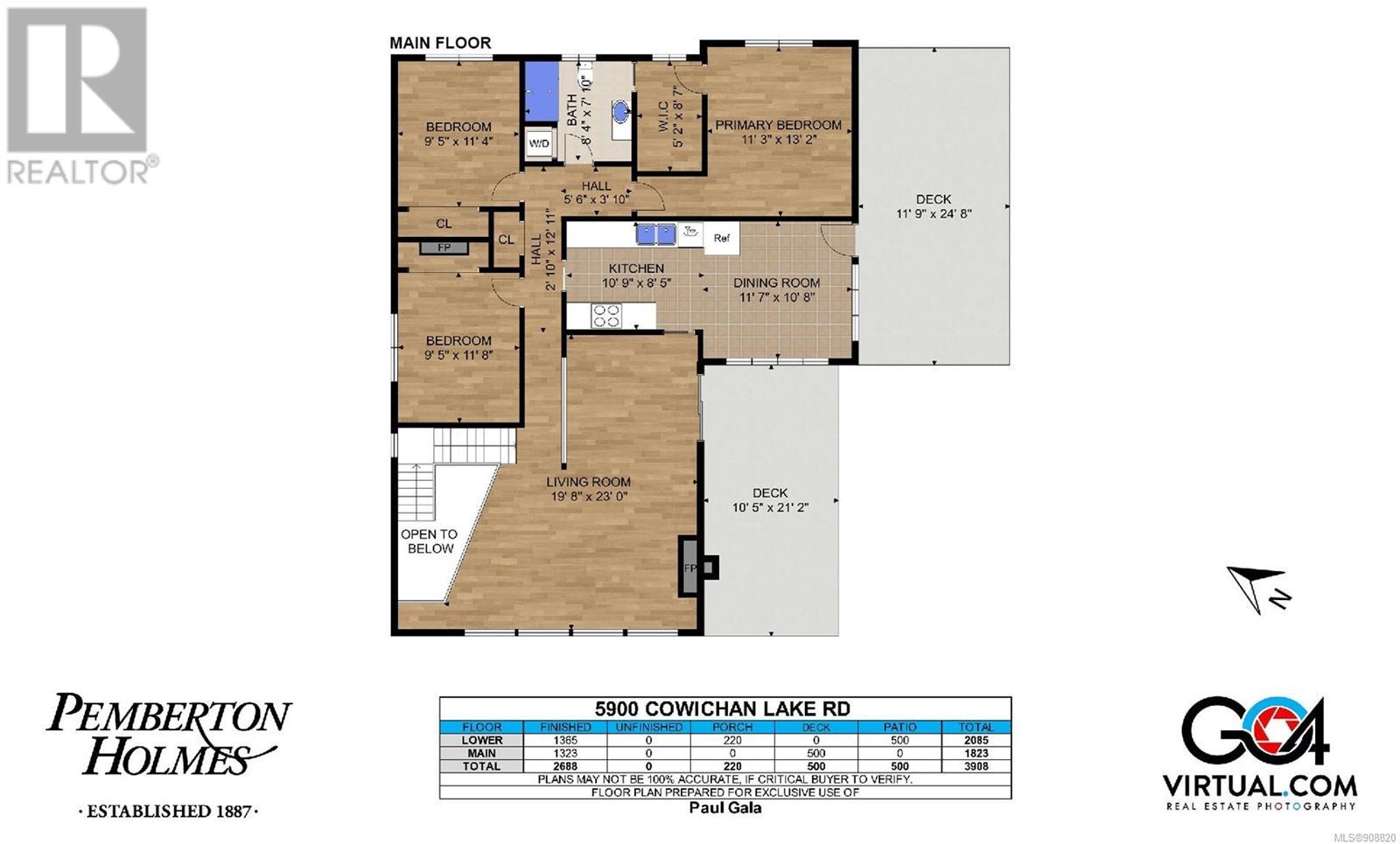
description: Large 2688 sq. ft, 4-bed, 2 bath family home features many great qualities. On the main you will find a semi-open floor plan. 3-bedrooms, bath & laundry. Gorgeous hardwood floors, 2 patios & plenty of windows to fill the home with sunshine. On the entry/lower floor, directly off the spacious foyer is the family rm w/a pellet stove. A flex room w/ a separate entrance, bed/den, bath & bonus room; potential suite. The extensive reno's are almost complete, bring your ideas! Nestled on 4.23 sunny, partially wooded private acres. The property is literally a physical vision board. What will you create? Happy hobby farm, gardenersÂ’ paradise, 2nd dwelling or private oasis. R-2 Zoning lends multiple opportunities, this a great investment. Long private driveway, tons of space for all your recreational gear. Minutes to Duncan, adjacent to TC trail. Close to the Cowichan River & all the amenities of Lake Cowichan. This is an opportunity not to be missed, book your showing today. Thank-you.
address: 5900 Cowichan Lake Rd
postal code: V9L6H9
city: Duncan
latitude: 48.79240256
longitude: -123.89849676
constructed_date: 1979
type: House
sub_type: Single Family
size_interior: 3908 sqft
size_total: 4.23 ac
architectural_style: Contemporary
bedrooms: 4
bathrooms: 2
fireplace_total: 3
heating_type: (Wood)
cooling_type: None
structure: Barn, Patio(s)
features: Acreage, Wooded area, Other