SnapRealty.ca
Back
ID: 72523
MLS ID: 24656530
MLS Nubmer: 909204
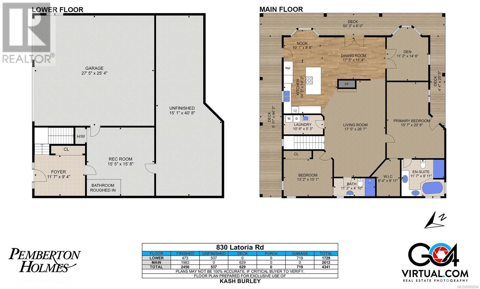
description: Amazing opportunity to own this 1.07 acre property with a spacious 4300 square foot custom built home with HUGE potential in the highly sought after city of Langford. This home offer main level living with 2 bedrooms plus den and unfinished lower level to customize to your needs. An added bonus is the massive 28 ft x 25 ft double car garage with workshop, wrap around deck, radiant in floor heat on upper level/ front entry and rec room on lower, built in speakers and wood burning fireplace. Rezoning potential for 6-8 single family lots or 20 plus townhouses. Municipal water connected and city sewer at the property line, this property is a developers dream. Located close to successful mixed-used developments, new high school and future elementary school, beaches and nearby recreational activities. The potential here is endless! Please do not walk the property without a confirmed appointment.
address: 830 Latoria Rd
postal code: V9C3A7
city: Langford
latitude: 48.41548965
longitude: -123.52323252
constructed_date: 2003
type: House
sub_type: Single Family
size_interior: 4332 sqft
size_total: 1.07 ac
bedrooms: 2
bathrooms: 2
fireplace_total: 1
heating_type: (Electric), (Wood), (Other)
cooling_type: None
parking_type: Garage
parking_space_total: 20
features: Other