SnapRealty.ca
Back
ID: 72508
MLS ID: 24656394
MLS Nubmer: 909335
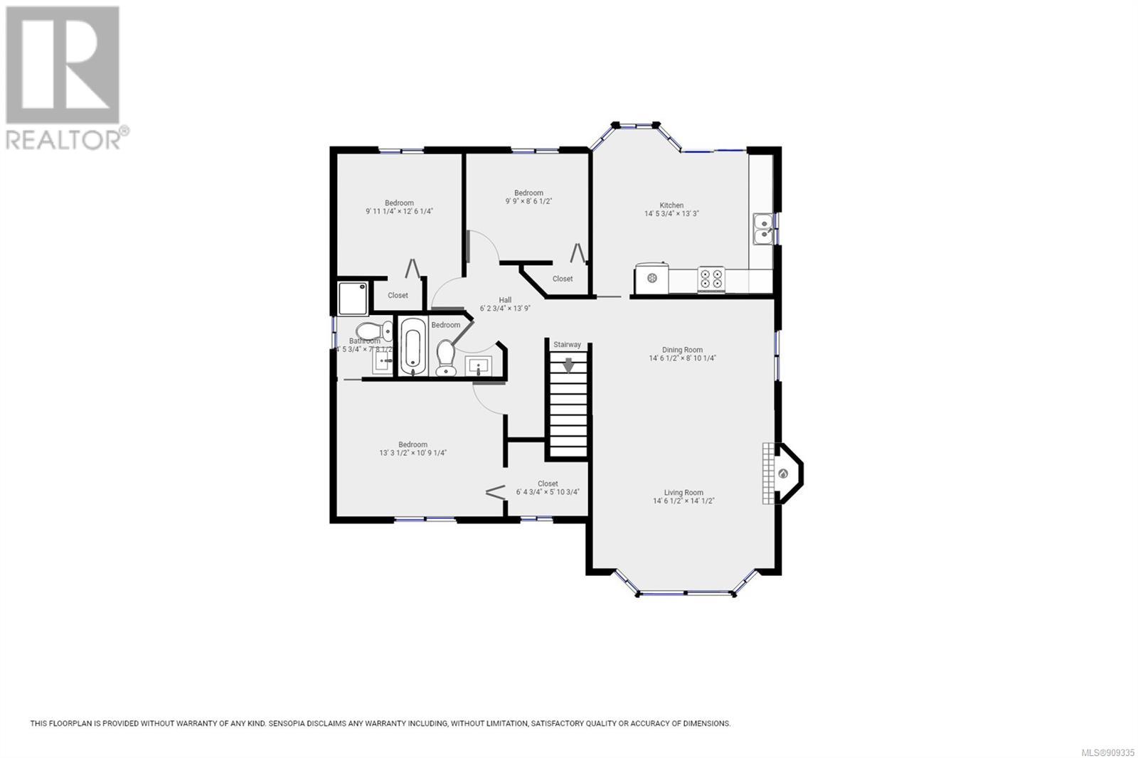
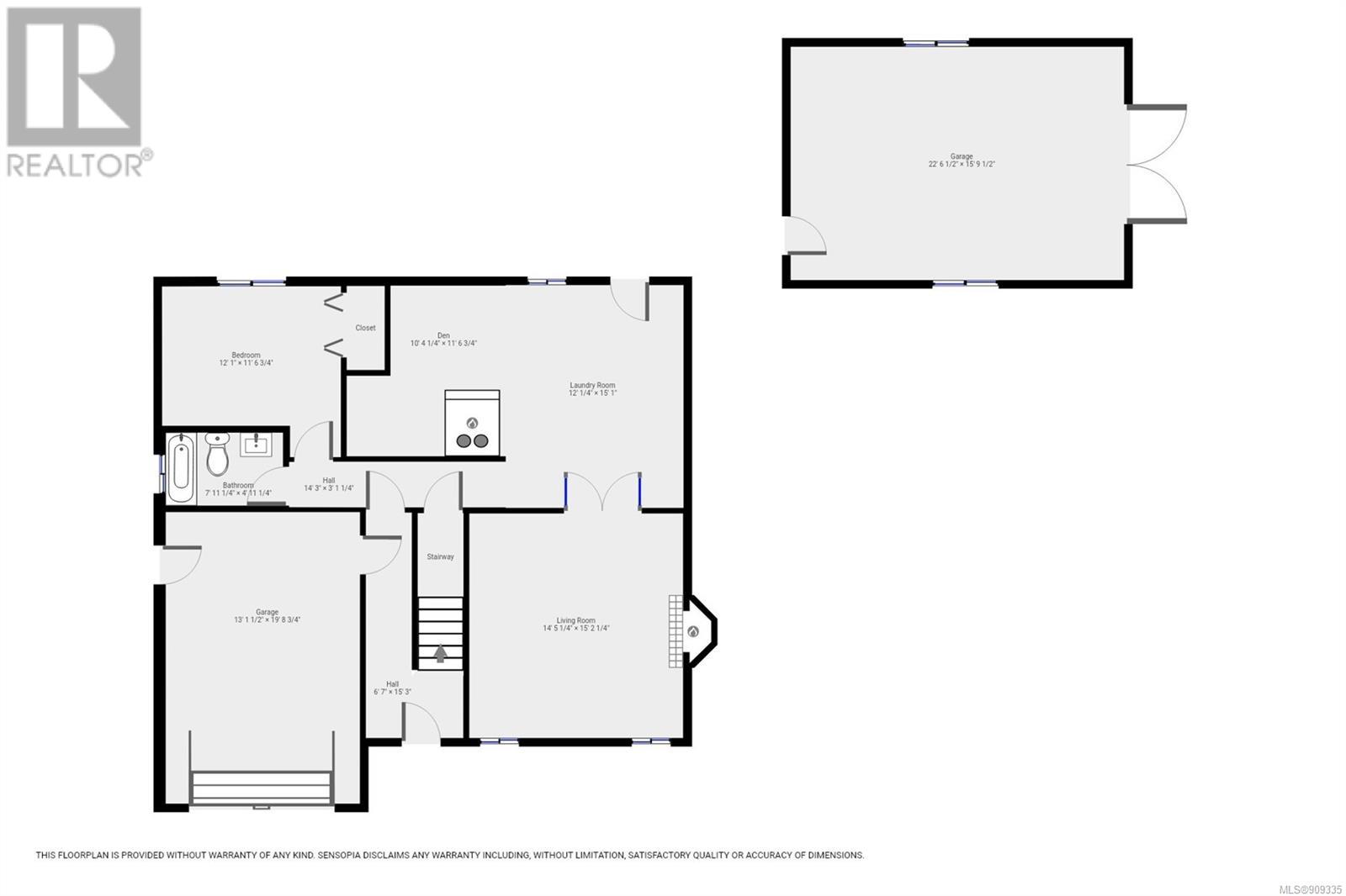
description: Spacious Willow Point family home with shop! This 4 bedroom, 3 bath home is located on a large level corner lot, close to all levels of schools, and walking distance to the ever-popular Rotary Seawalk. You are sure to appreciate the beautiful hardwood floors in the main living and dining areas, and the large bright kitchen with access to the deck overlooking the rear yard. Some of the many great features of this home include newer heat pump , newer vinyl windows, 13-year-old roof, and the detached, wired workshop. Quick possession is a possibility with this perfectly family-friendly home.
address: 404 Goodwin Rd
postal code: V9W6R7
city: Campbell River
latitude: 49.97139103
longitude: -125.23228819
constructed_date: 1988
type: House
sub_type: Single Family
size_interior: 2116 sqft
size_total: 9583 sqft
bedrooms: 4
bathrooms: 3
fireplace_total: 2
heating_type: Forced air, Heat Pump
cooling_type: Air Conditioned
features: Central location, Other