| ID: | 72436 |
|---|---|
| MLS ID: | 24656320 |
| MLS Nubmer: | 908786 |
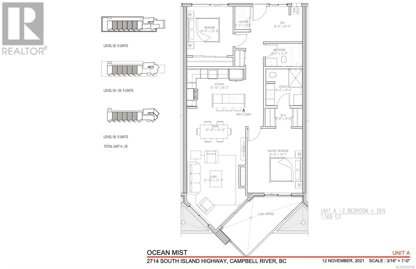
| description: | A floor plan- 1169 sq ft 2 bed 2 bath with lovely ocean and mountain views. These condos are all thoughtfully designed and have the modern luxury level finishes. 2 different finishing schedules to choose from, appliance package included, heat pump forced air, gas fireplace and gas BBQ outlets, underground parking, electric car charging station....and the list goes on. Don't miss out and get in on this lifestyle. Easy living and close to everything...including the ocean! Rentals and pets are allowed. |
| address: | 207 2714 Island Hwy S |
| postal code: | V9W1C7 |
| city: | Campbell River |
| latitude: | 49.96401182 |
| longitude: | -125.20971380 |
| constructed_date: | 2022 |
| type: | Apartment |
| sub_type: | Single Family |
| size_interior: | 1169 sqft |
| bedrooms: | 2 |
| bathrooms: | 2 |
| fireplace_total: | 1 |
| heating_type: | Forced air, Heat Pump |
| cooling_type: | Central air conditioning |
| parking_type: | Underground |
| parking_space_total: | 51 |
| view_type: | Mountain view, Ocean view |
| features: | Southern exposure, Other, Marine Oriented |
| community_features: | Pets Allowed With Restrictions, Family Oriented |