SnapRealty.ca
Back
ID: 71116
MLS ID: 24645719
MLS Nubmer: 909070
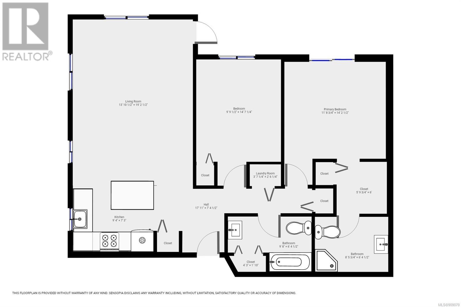
description: Top floor, corner unit ocean view condo in popular South point Estates! Located in Willow Point, this 55+ complex is close to shopping, dining, and just steps away from Campbell River's lovely Seawalk. This bright and spacious, nicely updated 2 bedroom, 2 bath unit offers a great open floor plan, large master bedroom with walk-through closet and 3 piece ensuite, and in-suite laundry. The location of the unit provides privacy, creek/woodland views from the kitchen/dining areas, and ocean views from the large balcony. Covered parking, elevator, secured entry, storage locker, and one small pet allowed.
address: 305 155 Erickson Rd
postal code: V9W1S6
city: Campbell River
latitude: 49.96653164
longitude: -125.20923092
constructed_date: 1993
type: Apartment
sub_type: Single Family
size_interior: 986 sqft
size_total: 986 sqft
bedrooms: 2
bathrooms: 2
fireplace_total: 1
heating_type: Baseboard heaters, (Electric), (Natural gas)
cooling_type: None
parking_type: Underground
parking_space_total: 1
features: Central location, Other
community_features: Pets Allowed, Age Restrictions