| ID: | 69503 |
|---|---|
| MLS ID: | 24631990 |
| MLS Nubmer: | R2707087 |
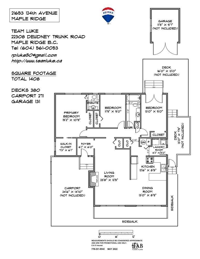
| description: | Awesome West Side Rancher 3 Bedrooms & 2 Bathrooms. Solid hardwood floors. Fresh Paint. A perfect starter home in a great area. Home is Virtual & Drone Toured by Keith Henderson Photography, Laser Drawings by Fab Floor Plans, House inspection by a Closer look Home Inspections. Report available by request. HoodQ Link. https://beta.hoodq.com/package/2117e412-9787-4a4a-9dd4 71c1f1f7a31d/detailed?scores=show ** Open House Sunday July 17th from 2 To 4. Thank You. |
| address: | 21653 124 AVENUE |
| postal code: | V2X4H6 |
| city: | Maple Ridge |
| latitude: | 49.22844400 |
| longitude: | -122.62142000 |
| constructed_date: | 1968 |
| type: | House |
| sub_type: | Single Family |
| size_interior: | 1408 sqft |
| size_total: | 7259 sqft |
| architectural_style: | Bungalow |
| construction_style_attachment: | Detached |
| bedrooms: | 3 |
| bathrooms: | 2 |
| fireplace_total: | 1 |
| basement_type: | Crawl space (Unknown) |
| storage: | Storage Shed |
| appliances: | All |
| amenities: | Laundry - In Suite |
| features: | Central location |
| amenities_near_by: | Golf Course, Recreation, Shopping |