SnapRealty.ca
Back
ID: 69377
MLS ID: 24631416
MLS Nubmer: R2706963
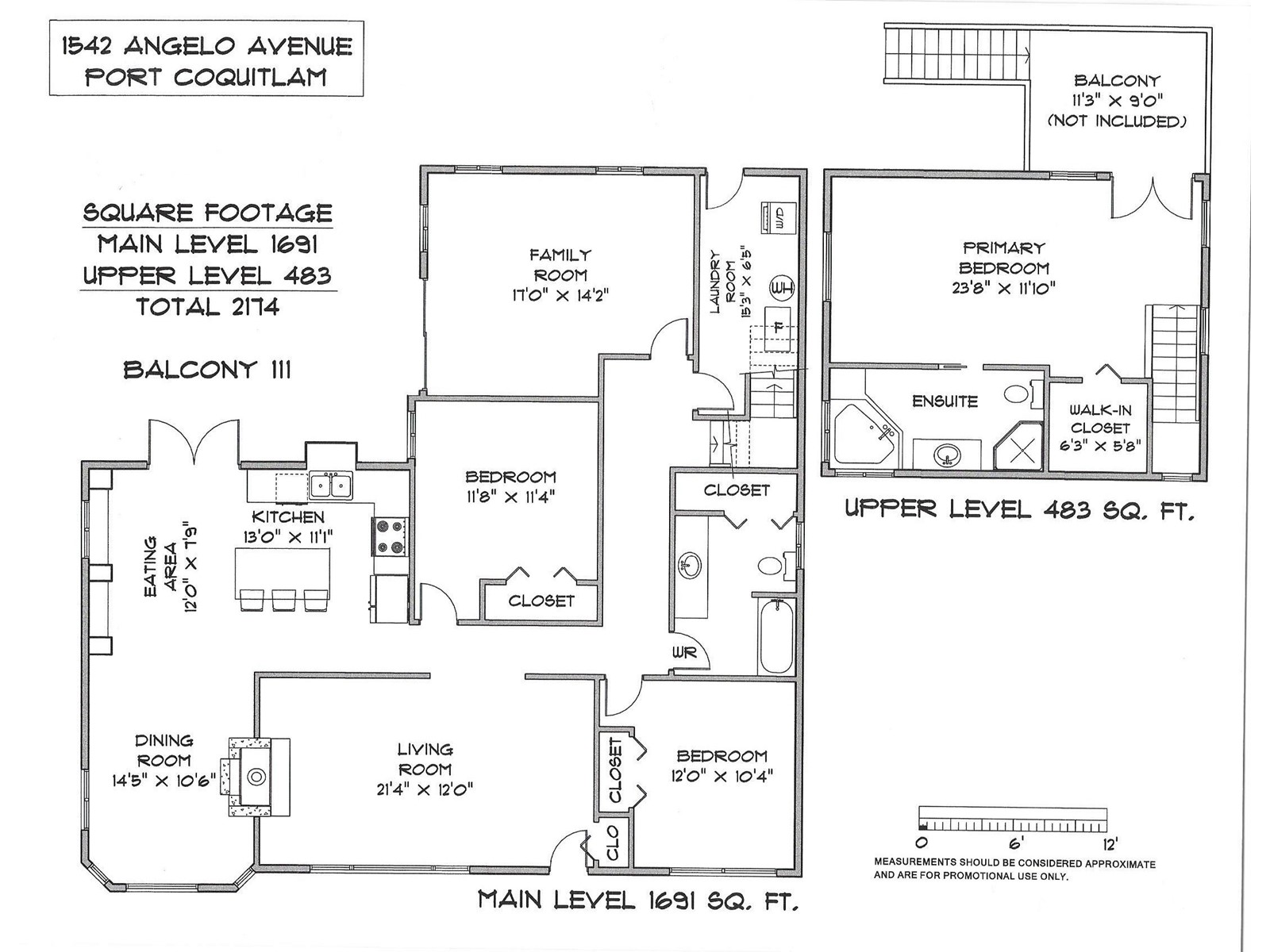
description: Looking for master on the main? This home is larger than it looks! Don't let the photo fool your eye - 2 levels plus a fantastic layout! 2174 square ft with almost 1700 sqft on main. 4 large bedrooms including a large master w/WI closet, ensuite & private balcony. The kitchen has updated cabinetry, quartz countertops, an Island, and stainless steel appliances (induction oven).Connected to your family sized deck/yard through french doors*Bonus- Hot Tub*! Updates: flooring, roof, HW tank, windows, furnace .In the living room & the dining area you can cozy up to the double sided wood burning fireplace-just one of many unique features in this home. Beautiful private gardens & meticulously maintained. Quiet street. Laneway at back of the property. Potential for duplex, detached garage, carriage home.
address: 1542 ANGELO AVENUE
postal code: V3B1C7
city: Port Coquitlam
latitude: 49.26153200
longitude: -122.75721700
constructed_date: 1960
type: House
sub_type: Single Family
size_interior: 2139 sqft
size_total: 7564 sqft
architectural_style: 2 Level
construction_style_attachment: Detached
bedrooms: 4
bathrooms: 2
fireplace_total: 1
basement_type: Crawl space (Unknown)
fixtures: Drapes/Window coverings
storage: Storage Shed
appliances: All
features: Central location, Private setting
amenities_near_by: Golf Course, Recreation, Shopping