SnapRealty.ca
Back
ID: 68596
MLS ID: 24625893
MLS Nubmer: 10258430
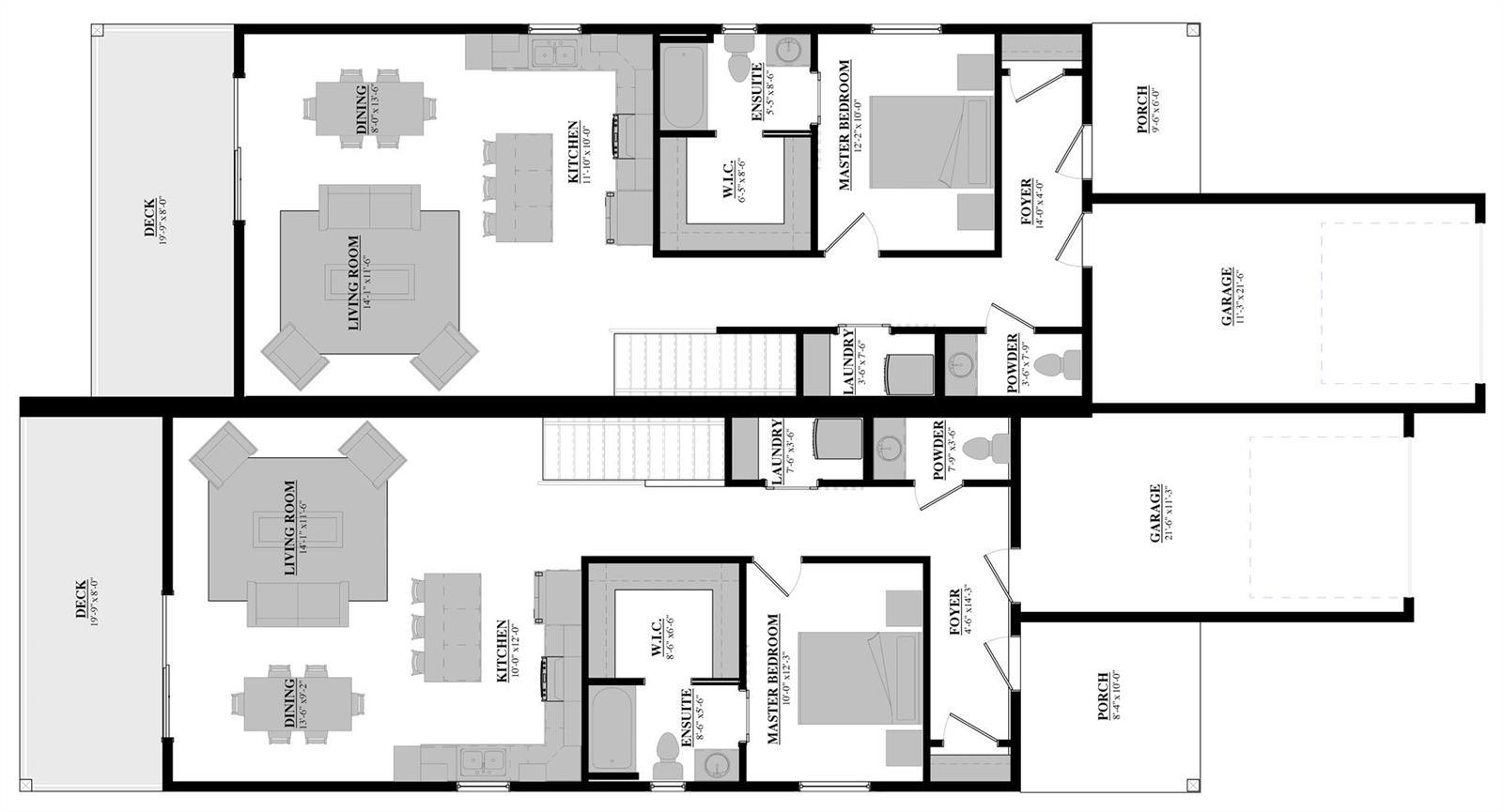
description: Monashee Verge, The Village of Lumby’s Newest Community is Perched just above the Town with Expansive Views of the Monashee Valley and Lumby Bluff’s. The Monashee Verge Boasts 20 Modern Semi-Detached Homes masterfully built by Luxman Developments. Each Home showcases approximately 2150 sqft of Designer Finishings, Classic Design, Grand Windows, an Executive Kitchen complete with Stainless Steel Appliances and an Open Concept One Level Living on the Main complete with Spacious Master, Ensuite and Walk-In. Need extra room for the Family? The Walk-Out Basement has Two Additional Bedrooms, Full Bath, Rec Room and Media Room, room for everyone! Pick your Vibe from the Two Contemporary Colour Pallets available. Each Home has a Single Car Garage and room on the driveway to park a Full-Size Truck. Love the Small Town Feeling? Look no further, Your New Home is within walking distance to all amenities, schools, parks and services that the Village of Lumby has to offer! Kelowna International Airport is only 50 minutes away and Vernon is an easy 20 Minute Drive. These won't last long!
address: #11 2508 Shuswap Avenue
postal code: V0E2G0
city: Lumby
latitude: 50.25508200
longitude: -118.97215200
constructed_date: 2022
type: Duplex
sub_type: Single Family
size_interior: 2157 sqft
size_total: 0|under 1 acre
architectural_style: Ranch
bedrooms: 3
bathrooms: 3
heating_type: Forced air, (Natural gas)
storeys: 1
basement_type: Full (Finished)
parking_type: Attached Garage (1)
parking_space_total: 2
appliances: Refrigerator, Gas stove(s), Dishwasher
view_type: View