SnapRealty.ca
Back
ID: 66046
MLS ID: 24605555
MLS Nubmer: 908051
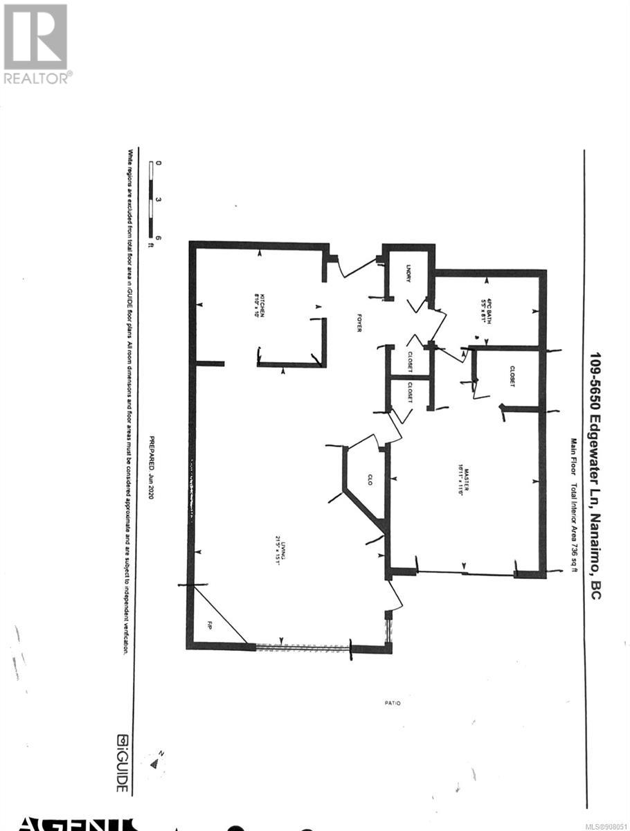
description: Rarely will you find a ground floor garden unit of this high quality. This 1 bedroom fully renovated unit in the Ambleside building at Longwood is a must see! The kitchen has lots of space for cooking, new stainless steel appliances & countertops. The living room has a beautiful gas fireplace, newer flooring, and overlooks the gorgeous patio. The primary bedroom is large enough for your king size bed, furniture, as well as lots of closet room. The bathroom, which also has access to the primary bedroom features a new sink & counter tops as well as a new high end toilet and vinyl heated floors. But the best part of living here, is enjoying your quiet private garden-like patio that has it's own access to the walking trail. 1 underground parking stall, and 2 storage lockers are included with this unit. Longwood allows for 1 small dog or cat, no rentals, and is walking distance to restaurants, groceries, & recreation.
address: 109 5650 Edgewater Lane
postal code: V9T6K1
city: Nanaimo
latitude: 49.22220610
longitude: -124.03393424
constructed_date: 1997
type: Apartment
sub_type: Single Family
size_interior: 773 sqft
bedrooms: 1
bathrooms: 1
fireplace_total: 1
heating_type: Baseboard heaters, Other
cooling_type: None
community_features: Pets Allowed, Family Oriented