SnapRealty.ca
Back
ID: 65231
MLS ID: 24599516
MLS Nubmer: 907896
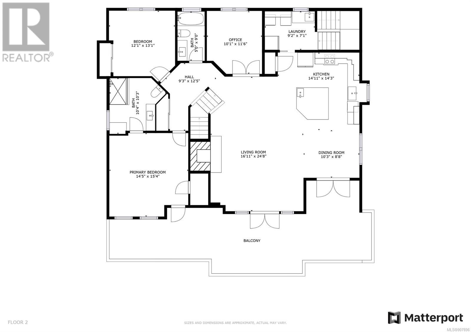
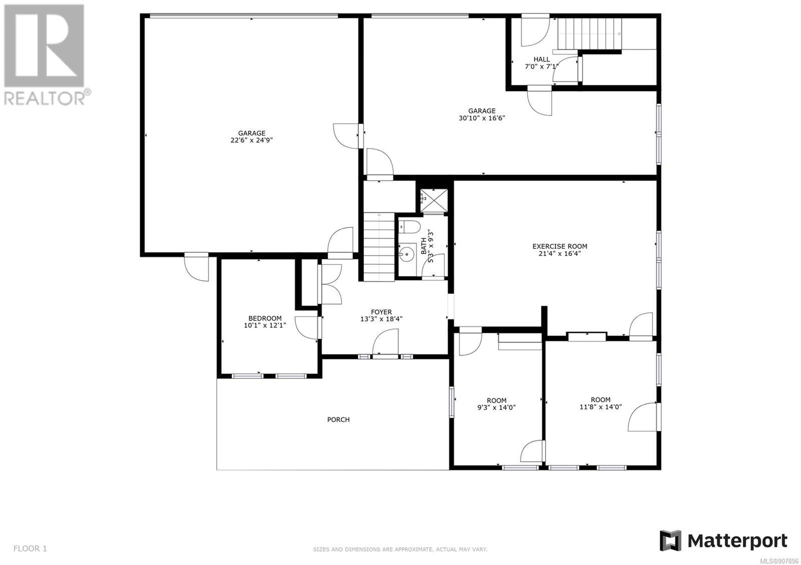
description: Panoramic Ocean View custom home with a bonus fully subdivided lot next door on almost 1/2 an acre in total. This home is immaculate inside and out with sweeping views from north to south. The kitchen is a dream with detailed millwork, new granite & Backsplash, a huge island, new appliances, on demand hot water at sink, vaulted ceilings, acacia engineered flooring, open plan to the living room dining area that flows to a beautiful partially covered deck with new glass railings. 2 bedrooms and a den up. The brand new ensuite is an oasis of luxury and the main bath is fully renovated, heated floors in main bath, ensuite and foyer. The lower level has another bathroom and a bedroom with a Murphy bed. The remainder of the basement has space that is currently run as a business with it's own parking and private entrance but could easily be turned into a suite with all the connections roughed in. There's also a triple garage and workshop space as well crawlspace storage. Outside there's an incredible custom Koi pond with 2 high end pumps, a private gated concrete fenced yard with underground sprinkler, garden beds and a storage shed. The house also features a new heat pump, gas furnace and on demand h/w system and fresh interior & exterior paint. Included in the purchase is the fully subdivided view lot next door. Sell or build for extended family. You are walking distance to Willow Point shopping, groceries, health clinic, coffee shops and restaurants as well as a stones throw from Beachfront Parks and the Seawalk. You need to see the intricate details and care that has gone into this home to appreciate it.
address: 91 / 97 Larwood Rd
postal code: V9W1S3
city: Campbell River
latitude: 49.96903767
longitude: -125.21197428
constructed_date: 2010
type: House
sub_type: Single Family
size_interior: 3803 sqft
size_total: 19166 sqft
bedrooms: 3
bathrooms: 3
fireplace_total: 1
heating_type: Forced air, Heat Pump, (Natural gas)
cooling_type: Air Conditioned
structure: Shed
appliances: Refrigerator, Stove, Washer, Dryer
view_type: Ocean view