| ID: | 65017 |
|---|---|
| MLS ID: | 24597396 |
| MLS Nubmer: | 907860 |
| description: | Welcome to tranquility at this 2.32 acre paradise gem! Enjoy stunning mountain views while relaxing by your fire pit or on your private wood dock at your large running water pond with the sounds of nearby Roy Creek. This unique property features main 4 bed home and additional suite accommodation for guests & extended family. Options for imaginative, creative types. Lovely character found with old growth wood beams, vaulted ceilings, wood floors, open concept kitchen with large island and many windows & 9 skylights bring in natural light. Two heated workshops for projects or toys - approx 20x30 & 25x10. Verify sizes, if imp. Outbuildings include two sheds, wood shed, chicken coop. Private driveway with space for RV, boat & guests. Raised garden beds, grapevines, berries & more! Only minutes to all amenities in Courtenay and also the trails and lake in Cumberland with easy highway access. A private sanctuary yet near all conveniences! You won't see one like this! Book your viewing now! |
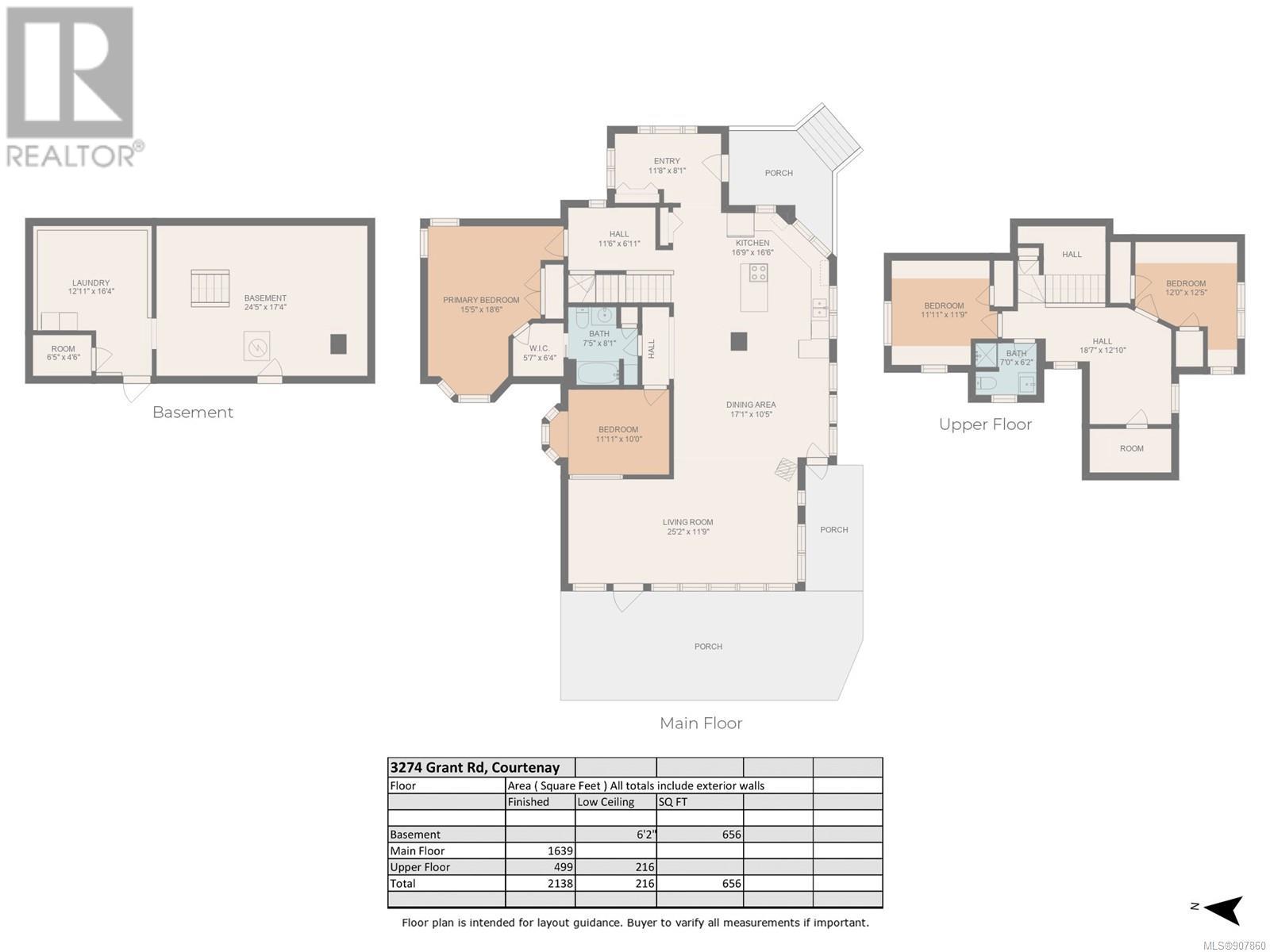
| address: | 3274 Grant Rd |
| postal code: | V9N9P7 |
| city: | Courtenay |
| latitude: | 49.63510495 |
| longitude: | -124.99202377 |
| type: | House |
| sub_type: | Single Family |
| size_interior: | 2794 sqft |
| size_total: | 2.32 ac |
| bedrooms: | 4 |
| bathrooms: | 2 |
| fireplace_total: | 1 |
| heating_type: | Baseboard heaters, (Electric), (Wood) |
| cooling_type: | None |
| structure: | Shed, Workshop |
| view_type: | Mountain view, River view, View |
| features: | Acreage, Central location, Level lot, Park setting, Private setting, Other |