| ID: | 64741 |
|---|---|
| MLS ID: | 24596087 |
| MLS Nubmer: | 10256973 |
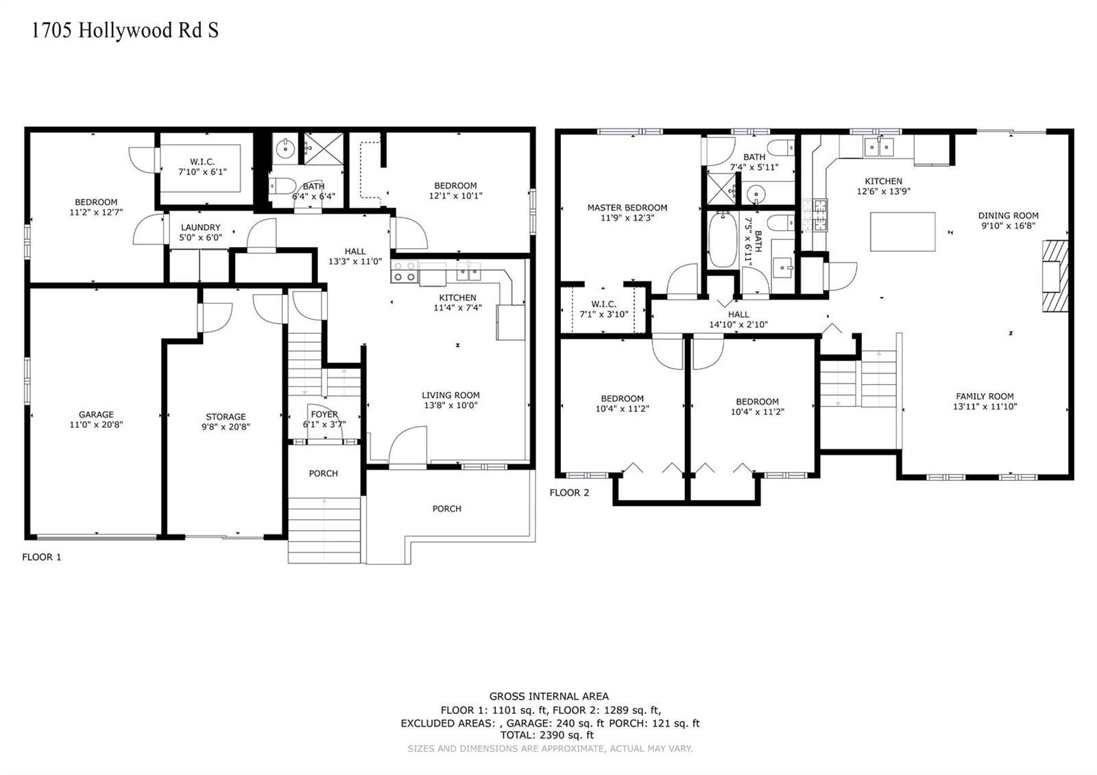
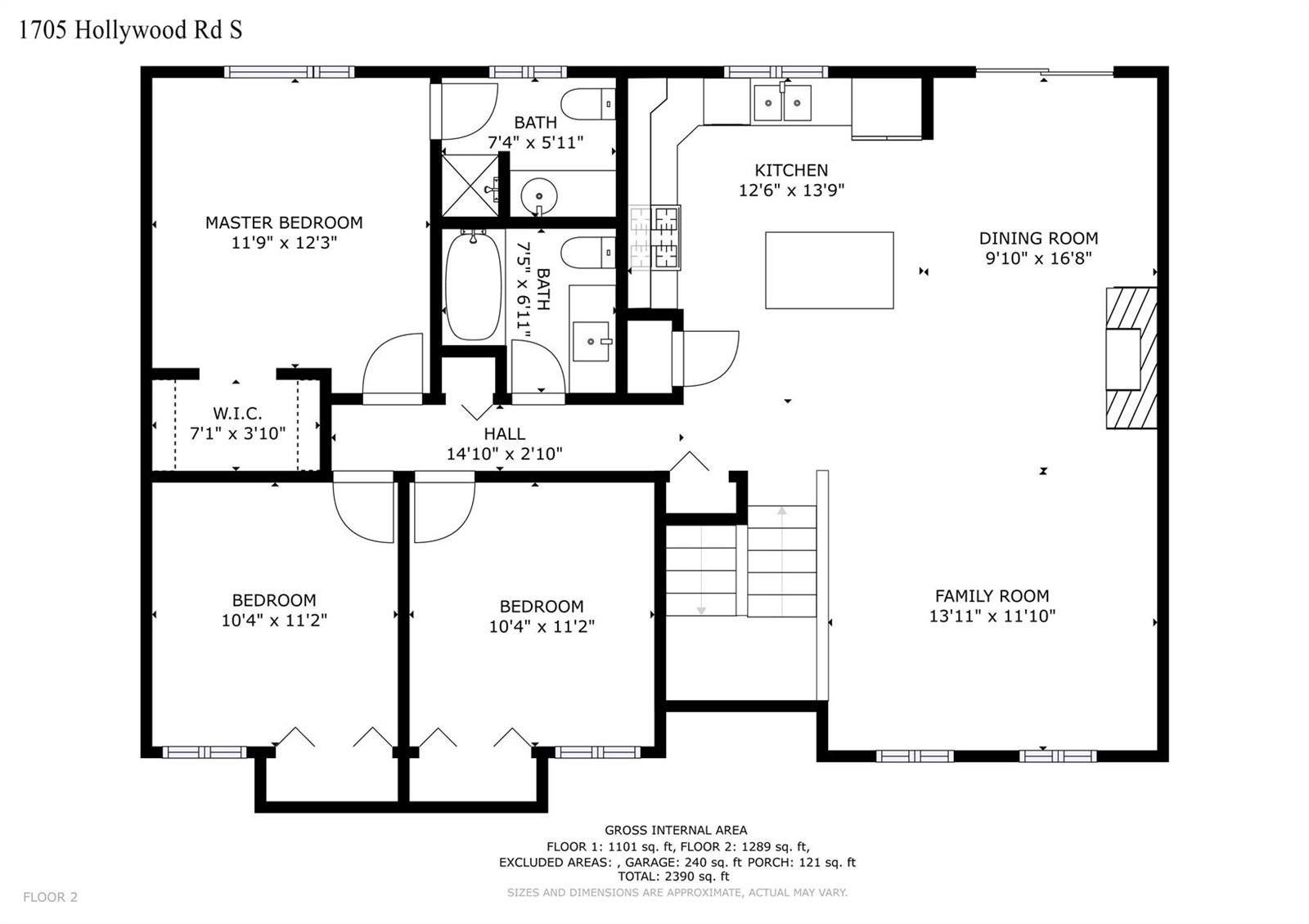
| description: | Welcome to your new recently renovated 5 bed 3 bath home. This home has all the bells and whistles including a 2 bedroom in-law suite with separate walkout entrance. This property has the ultimate outdoor privacy. Situated on a .7 acre lot, the usable yard space is exceptional. Large back deck with well maintained newer hot tub included, 2 fully fenced areas for the kids and pets to play, and 2 large sheds. The main floor of the house consists of 3 good sized bedrooms and 2 baths, newly renovated kitchen with custom countertop island, and open concept to the dining and living areas, perfect for entertaining. The lower level has a very comfortable 2 bed 1 bath in-law suite with a full kitchen, their own fenced yard space and a fabulous tenant who would like to stay. One side of the 2 car garage was converted into a studio space which is heated and cooled and has sliding glass doors for lots of natural light. This space can be easily converted back to garage space or turn it into a super cool party room. Seller is an artist and has created one of a kind countertops throughout the house. Updates include: furnace approx 9 years old, Central air 3 years old, interior painted 2022, flooring in basement bedrooms, hallway and bathroom replaced in 2022, 200amp electrical. Excellent tenant pays $1400/month and would love to stay. 24 hours required for tenant space viewing. |
| address: | 1705 Hollywood Road S |
| postal code: | V1X4P2 |
| city: | Kelowna |
| latitude: | 49.86997200 |
| longitude: | -119.38979000 |
| constructed_date: | 1982 |
| type: | House |
| sub_type: | Single Family |
| size_interior: | 2390 sqft |
| size_total: | 0.7 ac|under 1 acre |
| architectural_style: | Bi-level |
| bedrooms: | 5 |
| bathrooms: | 3 |
| heating_type: | (Natural gas) |
| cooling_type: | Central air conditioning |
| basement_type: | Full (Finished) |
| parking_type: | Attached Garage (2) |
| parking_space_total: | 4 |
| storage: | Storage Shed |
| structure: | Workshop, Patio(s), Deck, Shed |
| landscape_features: | Landscaped |
| appliances: | Dryer - Electric, Refrigerator, Washer, Range - Electric, Gas stove(s), Dishwasher, Microwave, Hot Tub |
| features: | Central location, Hillside, Private setting, Flat site |
| amenities_near_by: | Public Transit |