SnapRealty.ca
Back
ID: 63555
MLS ID: 24585128
MLS Nubmer: 10256783
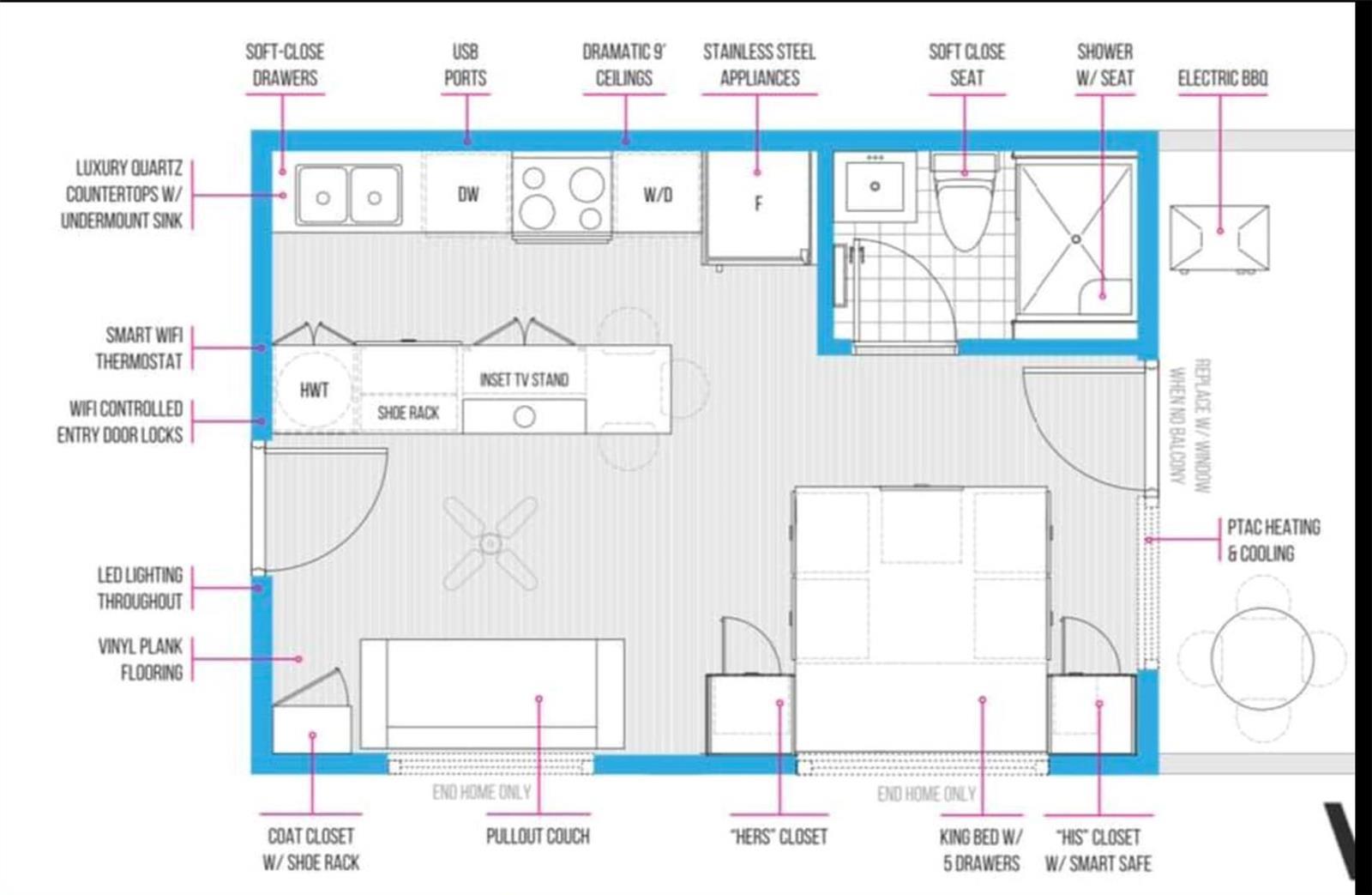
description: Looking for an investment that allows short term rentals or a full furnished condo to live in or rent out long term? If so, you must check out this micro suite on the first floor that comes turn-key, all you need to do is bring your suitcase. Prime location steps to Okanagan Lake and easy access off our your patio which is also great for taking your dog out. The recently completed Vita community offers: pickleball court, cardio room, designated parking spot, EV charging stations, guest parking, bike racks, Storage locker, outdoor pool (expected to open soon), common laundry facilities for bulky items on 4 floors. GST was deferred when purchased, so price is plus GST or defer it too, if you can! Strata fee $255.58. Pet restrictions: 2 dogs or 2 cats or one of each but not exceeding 25lbs. Some restrictions and exemptions apply, see bylaws. No rental restrictions.
address: #101 2555 Lakeshore Road
postal code: V1H1M9
city: Vernon
latitude: 50.24150100
longitude: -119.34160200
constructed_date: 2021
type: Apartment
sub_type: Single Family
size_interior: 313 sqft
size_total: under 1 acre
bathrooms: 1
heating_type: Baseboard heaters, (Electric)
cooling_type: Wall unit
pool_type: Outdoor pool
storage: Storage
appliances: Whirlpool
amenities: Exercise Centre
features: Central location, Balcony
amenities_near_by: Park