SnapRealty.ca
Back
ID: 58745
MLS ID: 24548484
MLS Nubmer: 906432
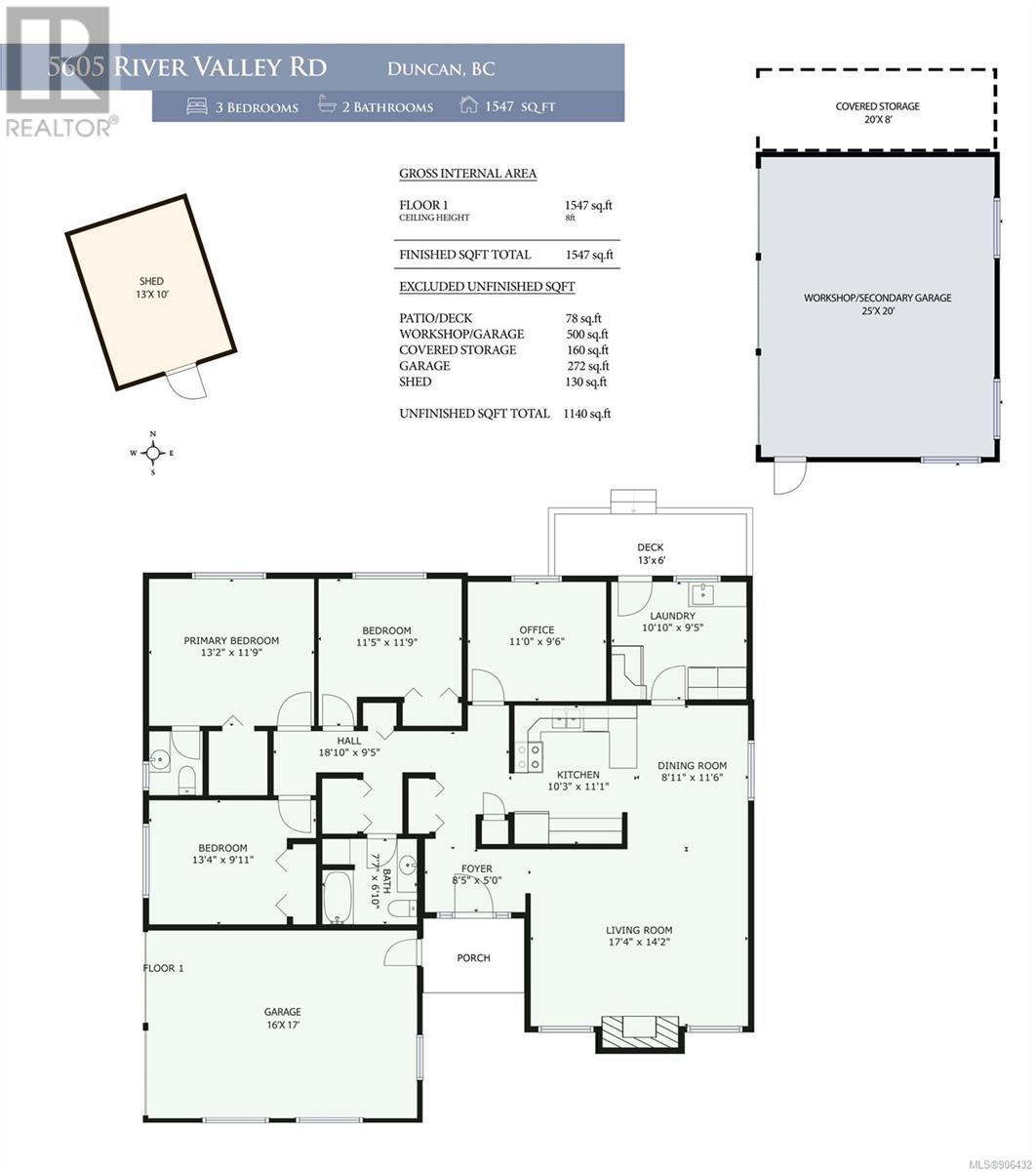
description: A peaceful setting in a sought-out neighbourhood, this beautiful 1.90 acre property is the perfect place to call home. A prime location, moments from fishing and swimming on the famous Cowichan River. This 4 bed 2 bath rancher features over 1,550 sqft of finished living space. The of unfinished space shared between the large attached double garage and detached triple garage. Appreciate the functional and practical floor plan, modern touches throughout, wood burning insert, updated windows/siding, and new cedar deck. Outside, this fenced-in property offers large grassy areas, fire pit area and large driveway with lots of parking.
address: 5605 River Valley Rd
postal code: V9L6H8
city: Duncan
latitude: 48.76858035
longitude: -123.87833007
constructed_date: 1976
type: House
sub_type: Single Family
size_interior: 2687 sqft
size_total: 1.79 ac
bedrooms: 4
bathrooms: 1
fireplace_total: 1
heating_type: (Electric), (Wood)
cooling_type: None
appliances: Refrigerator, Stove, Washer, Dryer