| ID: | 58475 |
|---|---|
| MLS ID: | 24547019 |
| MLS Nubmer: | 906131 |
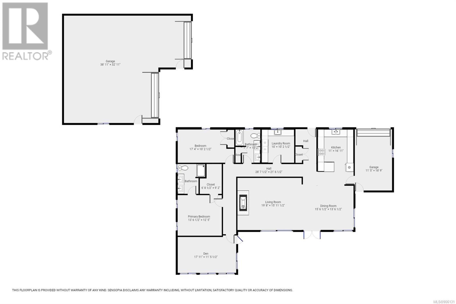
| description: | Spectacular views and beautiful home & shop. This house has been built with the highest qualities and is now offered for sale. Panoramic views of the ocean & mountains in a wonderful quiet area of town . The home is perched high off the road taking full advantage of the lot. 2000 sq ft 2 bedroom rancher with an additional room the owner built as an office/den to take in the views while working or enjoying life. This is a very nice home to be in... open concept living /dining /kitchen area, bright with big picture windows & beautiful hardwood floors that gleam. Hallways & doors are wide making the home wheelchair friendly & easy to navigate. Crawl space & utility room down. Home has central vac, hot water on demand, & heat pump. Now lets talk about the shop- Over 1000 sqft with over-height doors -heated, plumbed, 200 AMP & just as immaculate as the home & property. Bring all your toys & your RV (set up with electric & Sani)- Nothing has been overlooked, this is truly a home you will love to live in & call home. Call The Signature Group to set up a private viewing- Kim Rollins 250-203-5144 or Brendon Renkema 250-204-3080 |
| address: | 15 Lynnwood Rd |
| postal code: | V9H1L9 |
| city: | Campbell River |
| latitude: | 49.91890540 |
| longitude: | -125.18547729 |
| constructed_date: | 2017 |
| type: | House |
| sub_type: | Single Family |
| size_interior: | 2139 sqft |
| size_total: | 13939 sqft |
| bedrooms: | 3 |
| bathrooms: | 2 |
| fireplace_total: | 1 |
| heating_type: | Forced air, (Natural gas) |
| cooling_type: | Air Conditioned, Central air conditioning |
| structure: | Workshop |
| view_type: | Mountain view, Ocean view |
| features: | Level lot, Corner Site, Other, Marine Oriented |