| ID: | 57151 |
|---|---|
| MLS ID: | 24537759 |
| MLS Nubmer: | 906332 |
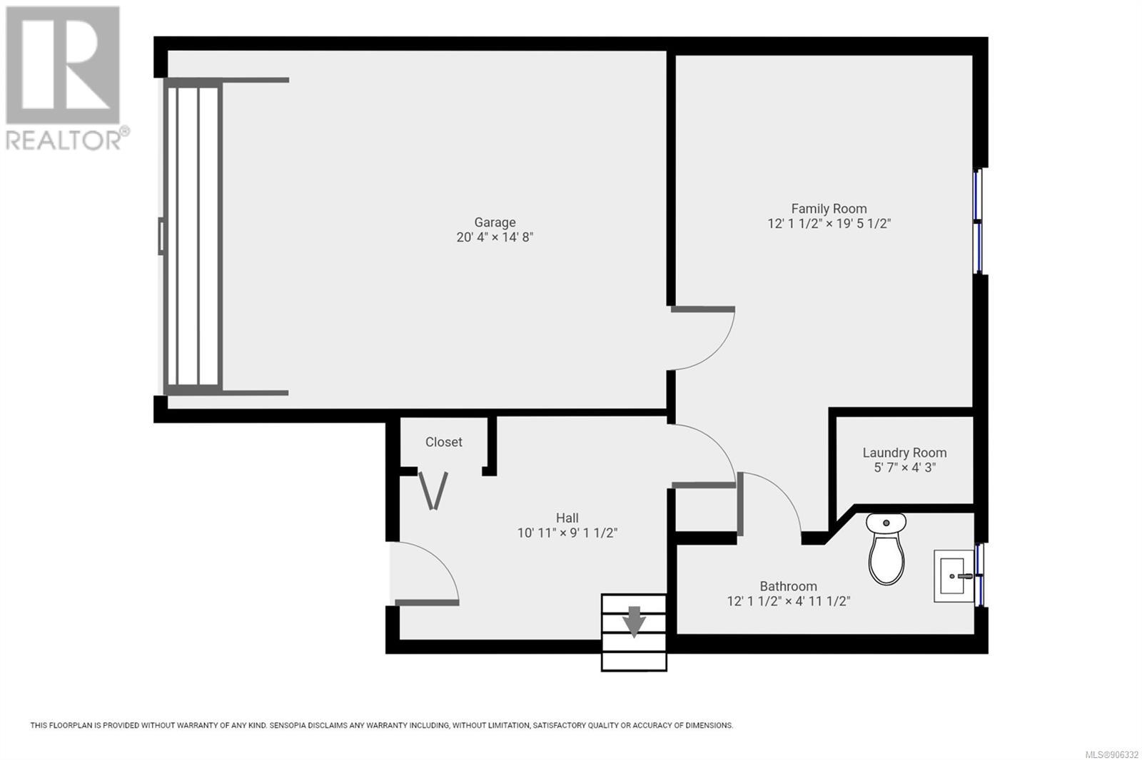
| description: | This fully renovated 3 bedroom 3 bath split level home sits on a huge corner lot with 2 driveways, across the street from Simms Creek Greenway. There's vaulted ceilings in the living room with cedar accents and a roughed in brick fireplace, large dining area with a slider to the rear deck & fenced yard and a beautiful new kitchen & appliances with a breakfast bar and tile backsplash. There's 3 bedrooms up with a fully renovated main bath as well as the updated 3 piece ensuite. On the lower level there's the entrance as well as a large family room, 2 piece bathroom, laundry area, and easy access to a huge crawl space storage area and access to the oversized single garage. Other updates include new windows trimmed out perfectly in beautiful fir, all interior doors are fir 6 panel. The exterior has cultured stone and vinyl siding as well as a large driveway with updated drainage. All located in a prime Willow Point location, close to shops and restaurants and recreation. Pride in ownership shows in this great family home. |
| address: | 1719 Galerno Rd |
| postal code: | V9W1K5 |
| city: | Campbell River |
| latitude: | 49.97828604 |
| longitude: | -125.22693348 |
| constructed_date: | 1974 |
| type: | House |
| sub_type: | Single Family |
| size_interior: | 2009 sqft |
| size_total: | 7841 sqft |
| bedrooms: | 3 |
| bathrooms: | 3 |
| fireplace_total: | 1 |
| heating_type: | Baseboard heaters, (Electric) |
| cooling_type: | None |
| appliances: | Refrigerator, Stove, Washer, Dryer |
| features: | Central location, Corner Site, Other |