SnapRealty.ca
Back
ID: 56958
MLS ID: 24536534
MLS Nubmer: 906286
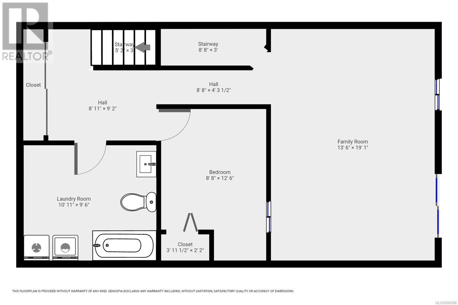
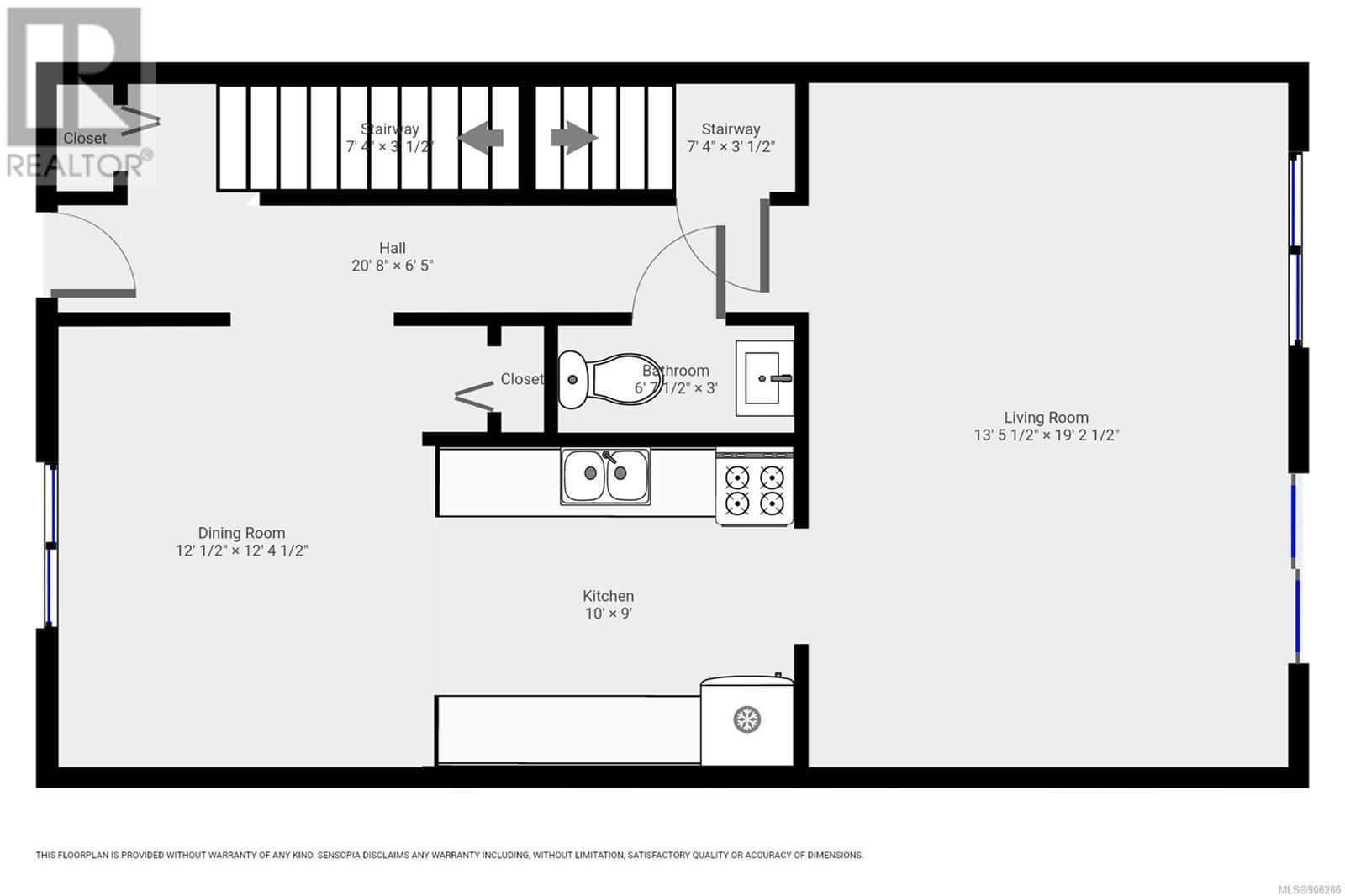
description: Great central location! This 3 Level townhome is close to shopping, all levels of schools, recreation and the Campbell River Hospital. With 4 bedrooms and 2 ½ baths, this great home offers main level entry with kitchen, dining and living on the main floor. 3 bedrooms up, and a 4th bedroom, laundry room and family room down. Ocean views can be enjoyed from the second floor bedrooms and main floor living area and balcony. Loads of room for the family and this complex has an outdoor pool for your summer time use with easy access from the family room.
address: 41 270 Evergreen Rd
postal code: V9W5G3
city: Campbell River
latitude: 50.00747758
longitude: -125.26940315
constructed_date: 1973
type: Row / Townhouse
sub_type: Single Family
size_interior: 2040 sqft
bedrooms: 4
bathrooms: 3
heating_type: Baseboard heaters, (Electric)
cooling_type: None
view_type: Ocean view
features: Other
community_features: Pets Allowed With Restrictions, Family Oriented