| ID: | 55394 |
|---|---|
| MLS ID: | 24523092 |
| MLS Nubmer: | 10255756 |
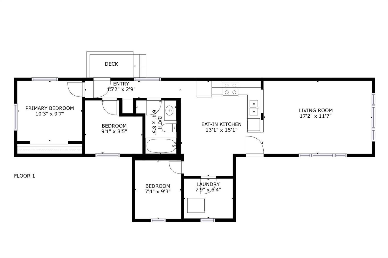
| description: | Great location! Nice and bright 3 bedroom, 1 bathroom manufactured home in a great well run park; Pine Ridge Estates. This home features a great functional layout and boasts covered porch, a fully fenced yard with separate shed, underground irrigation and a separate dog run. New furnace. Pets and rentals are allowed with some restrictions. Easy access to the Boucherie Wine Trail, with over 12 wineries, brewpubs, restaurants & other attractions. Close to shopping & other amenities & services at the Westbank/West Kelowna Hub Centre, the Lakeview Village Mall, Okanagan Lake Shopping Centre and only 10 minutes from downtown Kelowna. Close to schools, beaches, parks, biking, hiking, golf & more. |
| address: | #35 1860 Boucherie Road |
| postal code: | V4T2A1 |
| city: | West Kelowna |
| latitude: | 49.83255600 |
| longitude: | -119.59219400 |
| constructed_date: | 1974 |
| type: | Manufactured Home/Mobile |
| sub_type: | Single Family |
| size_interior: | 900 sqft |
| size_total: | 0|under 1 acre |
| bedrooms: | 3 |
| bathrooms: | 1 |
| heating_type: | Forced air, (Natural gas) |
| storeys: | 1 |
| storage: | Storage Shed |
| structure: | Deck, Shed |
| landscape_features: | Garden Area, Underground sprinkler |
| appliances: | Dryer - Electric, Refrigerator, Washer, Range - Electric, Dishwasher, Microwave |
| community_features: | Family Oriented |
| amenities_near_by: | Golf Course, Recreation, Shopping, Schools, Park, Public Transit |