| ID: | 53140 |
|---|---|
| MLS ID: | 24505146 |
| MLS Nubmer: | 905582 |
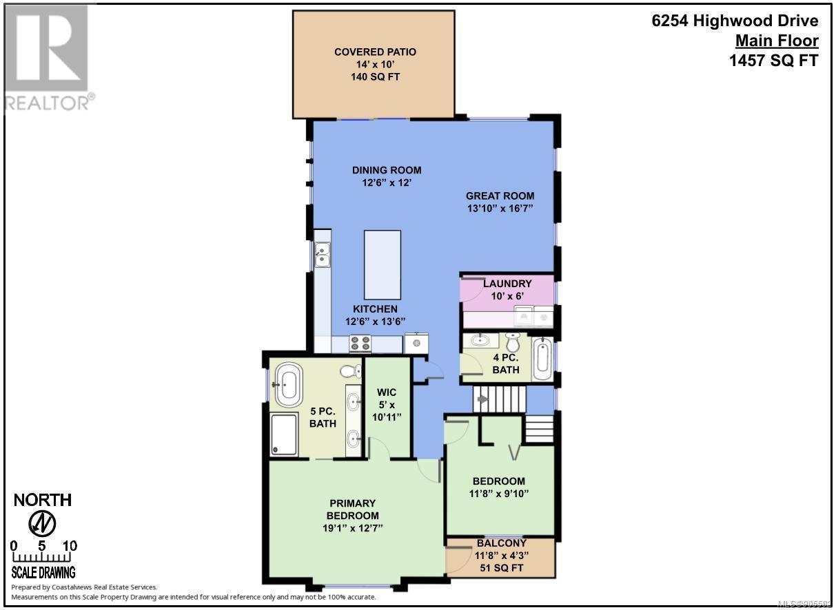
| description: | Brand new home with legal suite on prestigious Highwood Drive with great views. 4 bedrooms, 3.5 baths over 2300 sq ft on a large 7000 sq ft lot. Currently under construction est completion sep 2022. Open floor plan, modern finishes, quartz countertops, Frigidaire appliances, natural gas furnace with heat pump, large deck with stairs off deck to rear yard. Large self contained legal suite with its own entrance. All measurements are approximate- please verify if important. |
| address: | 6254 Highwood Dr |
| postal code: | V9L0G7 |
| city: | Duncan |
| latitude: | 48.80118113 |
| longitude: | -123.62658225 |
| constructed_date: | 2022 |
| type: | House |
| sub_type: | Single Family |
| size_interior: | 2387 sqft |
| size_total: | 6970 sqft |
| bedrooms: | 4 |
| bathrooms: | 4 |
| fireplace_total: | 1 |
| heating_type: | Baseboard heaters, (Electric) |
| cooling_type: | None |
| parking_type: | Garage |
| parking_space_total: | 4 |
| view_type: | Lake view, Mountain view |
| features: | Curb & gutter, Other, Marine Oriented |