SnapRealty.ca
Back
ID: 51871
MLS ID: 24495547
MLS Nubmer: R2696135
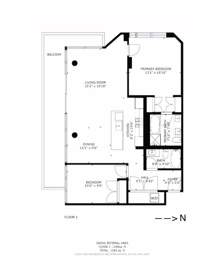
description: Rarely Found Penthouse award winning bold design by architect Amo Matis located in the most desirable Westside area across Oakridge Mall.Southwest facing corner unit with over 200 sq.ft. wrap around balcony! Open layout, 9'ceilings, floor-to-ceiling windows with UV proof window film and electric curtains, gourmet kitchen with 6 pieces Miele appliances package, Large granite counter top with lots of cabinet space. Air conditioning smart home can be controlled by each room individually!Luxury fixtures also includes the upgrade electric switches can be operated by your cell phone remotely. Huge roof top deck.One parking and one locker.Steps to shopping, grocery, recreation& SkyTrain. Famous School Catchment: Langara College, Dr. Jamieson Elementary, W. Churchill and E. Hamber Secondary.
address: 705 5699 BAILLIE STREET
postal code: V5Z3M7
city: Vancouver
latitude: 49.23405800
longitude: -123.12275300
constructed_date: 2017
type: Apartment
sub_type: Single Family
size_interior: 1193 sqft
bedrooms: 2
bathrooms: 2
cooling_type: Air Conditioned
structure: Clubhouse
appliances: All
amenities: Laundry - In Suite
view_type: City view
features: Central location, Elevator
amenities_near_by: Golf Course, Recreation, Shopping