SnapRealty.ca
Back
ID: 50344
MLS ID: 24482877
MLS Nubmer: R2695222
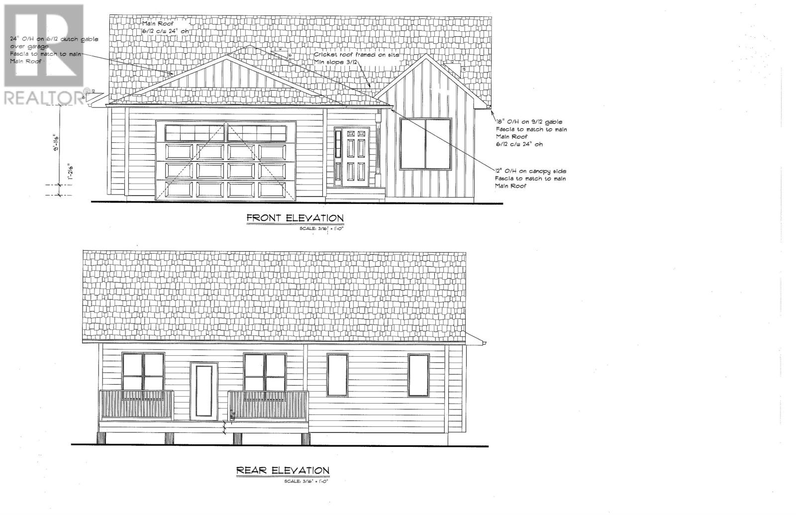
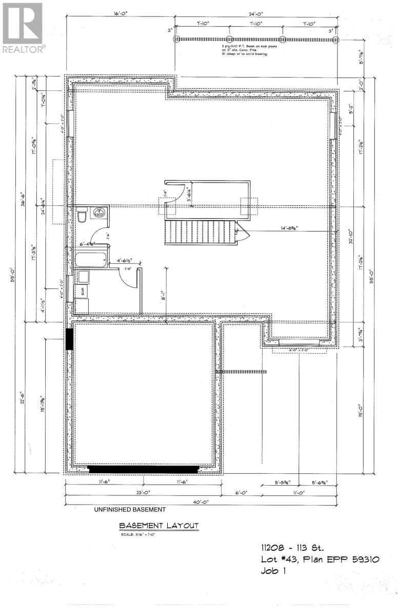
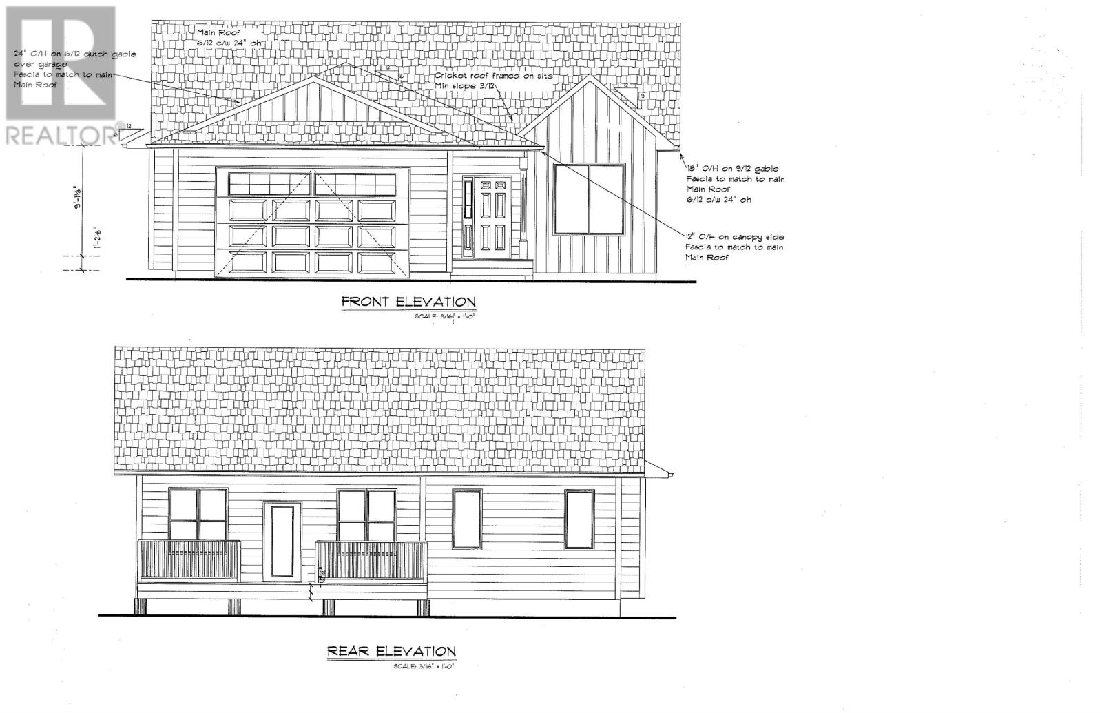
description: * PREC - Personal Real Estate Corporation. Welcome to this executive home in the desirable Westridge Estates. Brand new, built in 2022 with no detail overlooked. The bright, open concept space paired w/modern design throughout, vaulted ceilings & big windows is sure to capture your attention. A dream kitchen with quartz countertops, ample storage & $8,000 w/purchase appliance allowance. No shortage of space with 3 bedrooms, 2 bathrooms & a full, unfinished bsmt waiting for your personal touches. Enjoy gorgeous sunsets on your West facing sundeck, overlooking the private back yard & a lovely green space for a country feel, while being only minutes from downtown. This family home is situated near Finch Elementary & Fish Creek walking trails. Completing the property is the attached double garage. Quick possession available.
address: 11208 113 STREET
postal code: V1J0R5
city: Fort St. John
latitude: 56.25721610
longitude: -120.86935557
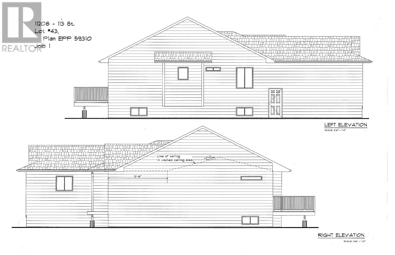
constructed_date: 2022
type: House
sub_type: Single Family
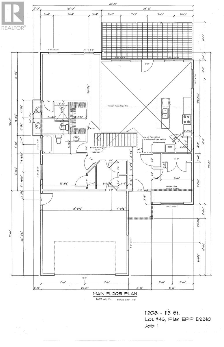
size_interior: 1469 sqft
size_total: 7206 sqft
construction_style_attachment: Detached
bedrooms: 3
bathrooms: 2
heating_type: Forced air (Natural gas)
storeys: 2
basement_type: Full (Partially finished)
parking_type: Garage
view_type: View