| ID: | 48765 |
|---|---|
| MLS ID: | 24471914 |
| MLS Nubmer: | 194563 |
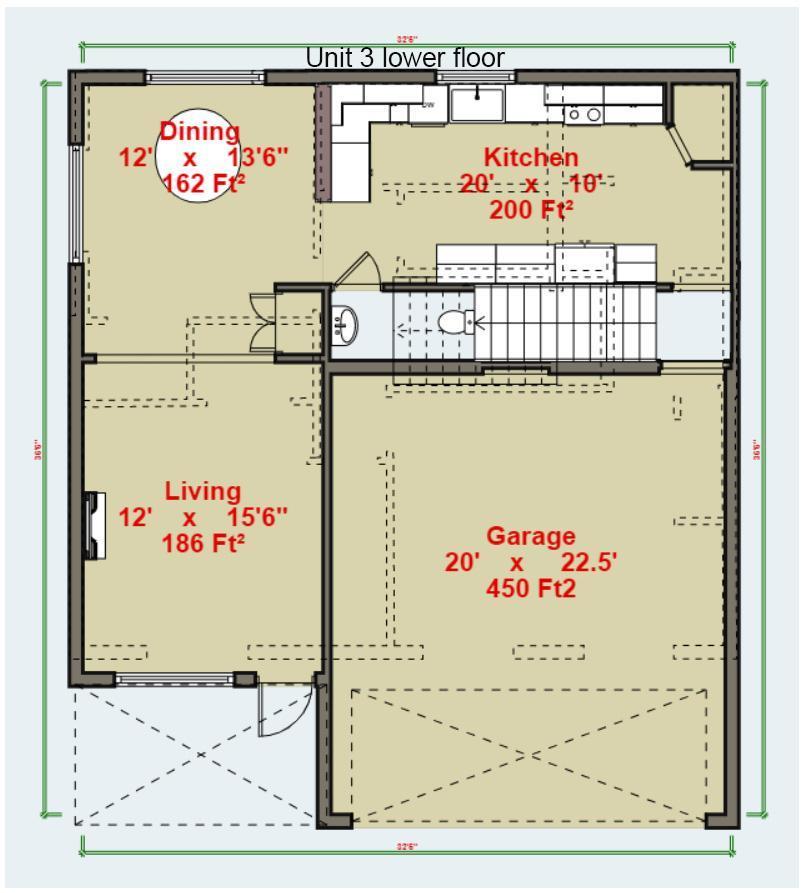
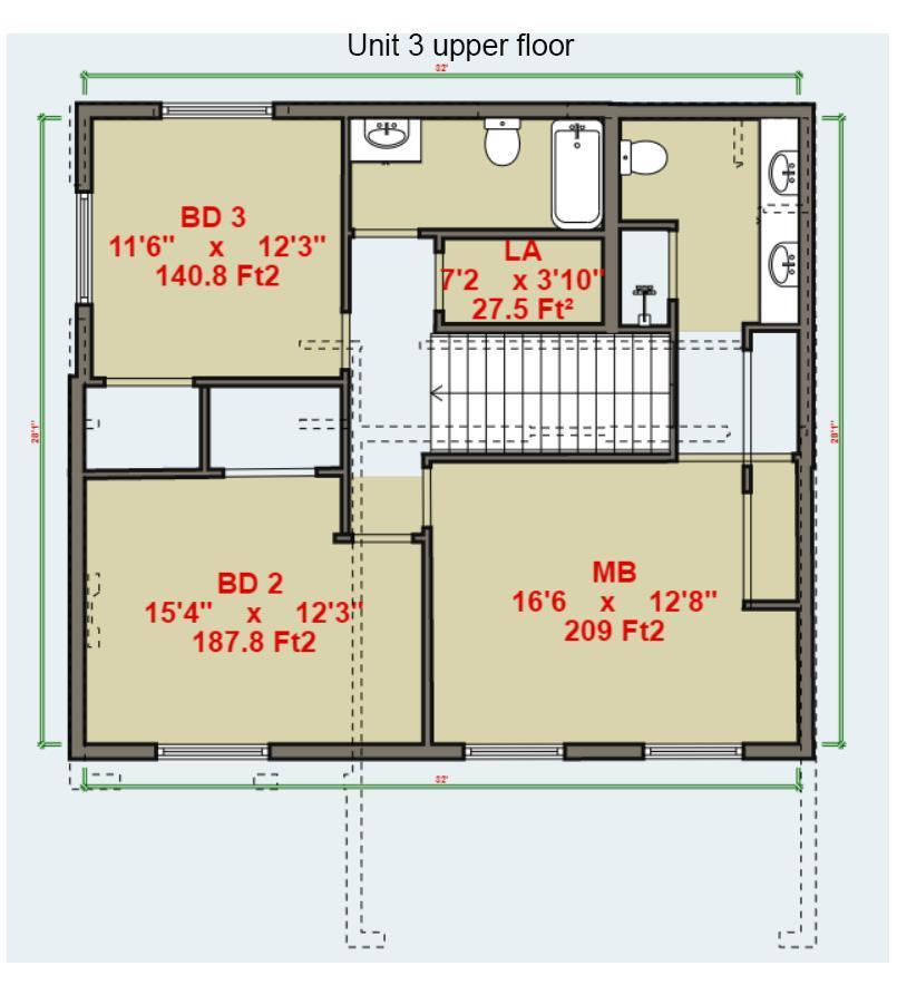
| description: | Quality home built town house in tri-plex development by local custom builder! Located in a quiet neighborhood, within walking distance to schools, restaurants, theatre and shopping. This is 1451 square feet of living space, making it an ideal family home. Featuring, a gas fireplace, vinyl plank flooring, quartz countertops, en suite bathroom, upper floor laundry, double garage and an additional visitor parking space for each unit. Move in ready for November 2022. Building plans are under the docs tab. Plans are approximate and need to be verified with the builder before commencement. GST is applicable. The 2-5-10 warranty is included. All measurements are approximate and buyer should verify if important. |
| address: | #3 5830 OKANAGAN Street |
| postal code: | V0H1T9 |
| city: | Oliver |
| latitude: | 49.17596800 |
| longitude: | -119.55561000 |
| type: | Triplex |
| sub_type: | Single Family |
| size_interior: | 1451 sqft |
| size_total: | 0|under 1 acre |
| bedrooms: | 3 |
| bathrooms: | 3 |
| heating_type: | (Electric), (Natural gas) |
| storeys: | 2 |
| basement_type: | Crawl space (Unknown) |
| parking_type: | See Remarks |
| parking_space_total: | 3 |
| appliances: | Dryer - Electric, Refrigerator, Washer, Dishwasher, Microwave |
| view_type: | Mountain view |
| features: | Central location, Flat site |
| amenities_near_by: | Golf Course, Recreation, Shopping, Ski hill, Schools |