| ID: | 47203 |
|---|---|
| MLS ID: | 24458423 |
| MLS Nubmer: | 10253657 |
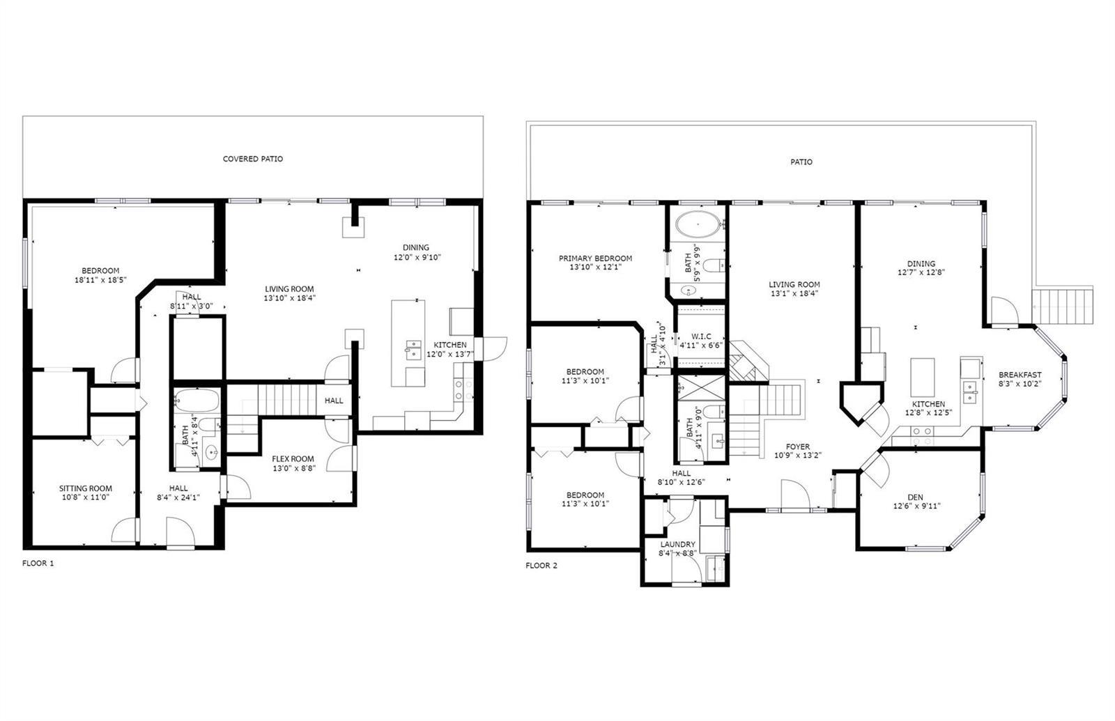
| description: | Do not miss this beautifully updated lake view walk-out rancher. This pristine 4 bed, 3 bath house includes a 1 bedroom self contained legal, ground-level in-law suite. Great family home layout occupies the main floor with 3 bedrooms, including the primary bedroom with a spa-like ensuite and walk in closet, vaulted ceiling in living room, large updated entertainers kitchen with granite counter tops and hot water on demand. Off the kitchen is a formal dining area with patio doors opening to the infinity glass oversized deck, to take in the expansive views. Laundry room and a bright den, to work from home, completes the upper space. Flooded with natural light from all the big windows as well as a huge wrap around deck to take in the sunshine, or have some shade with the built-in pergola. Impressive in-law suite with full kitchen, large living room and bedroom, flex room, its own laundry and walk-in pantry with a massive covered patio, to complete the lower space. If that wasnt enough to entice you, the grounds include a perennial garden, an enclosed vegetable garden area with its own shed, large green space with RV and Boat parking. Double heated garage and ample storage. Centrally located but far enough to feel its private oasis. Minutes to the beach and public boat launch, shopping, schools, parks, Kelowna airport and UBCO. |
| address: | 1760 Camp Road |
| postal code: | V4V1N9 |
| city: | Lake Country |
| latitude: | 50.04133400 |
| longitude: | -119.43800900 |
| constructed_date: | 1994 |
| type: | House |
| sub_type: | Single Family |
| size_interior: | 3136 sqft |
| size_total: | 0.29 ac|under 1 acre |
| architectural_style: | Ranch |
| bedrooms: | 4 |
| bathrooms: | 3 |
| heating_type: | Forced air, (Natural gas) |
| cooling_type: | Central air conditioning |
| storeys: | 1 |
| basement_type: | Full (Finished) |
| parking_type: | Attached Garage (2) |
| parking_space_total: | 5 |
| storage: | Storage Shed |
| structure: | Workshop, Sundeck, Deck, Shed |
| landscape_features: | Landscaped, Garden Area |
| appliances: | Dryer - Electric, Refrigerator, Washer, Range - Electric, Dishwasher, Microwave, Central Vacuum |
| view_type: | Lake view, Mountain view, View |
| features: | Central location, Park setting |
| community_features: | Quiet Area |
| amenities_near_by: | Recreation, Shopping, Schools, Park |