SnapRealty.ca
Back
ID: 41210
MLS ID: 24414388
MLS Nubmer: 903014
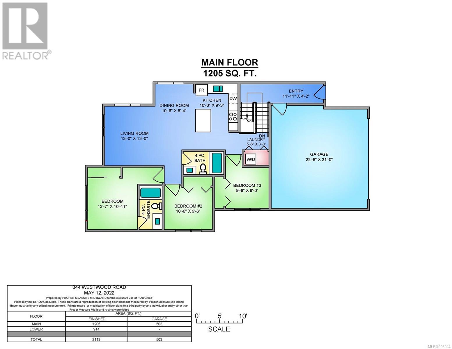
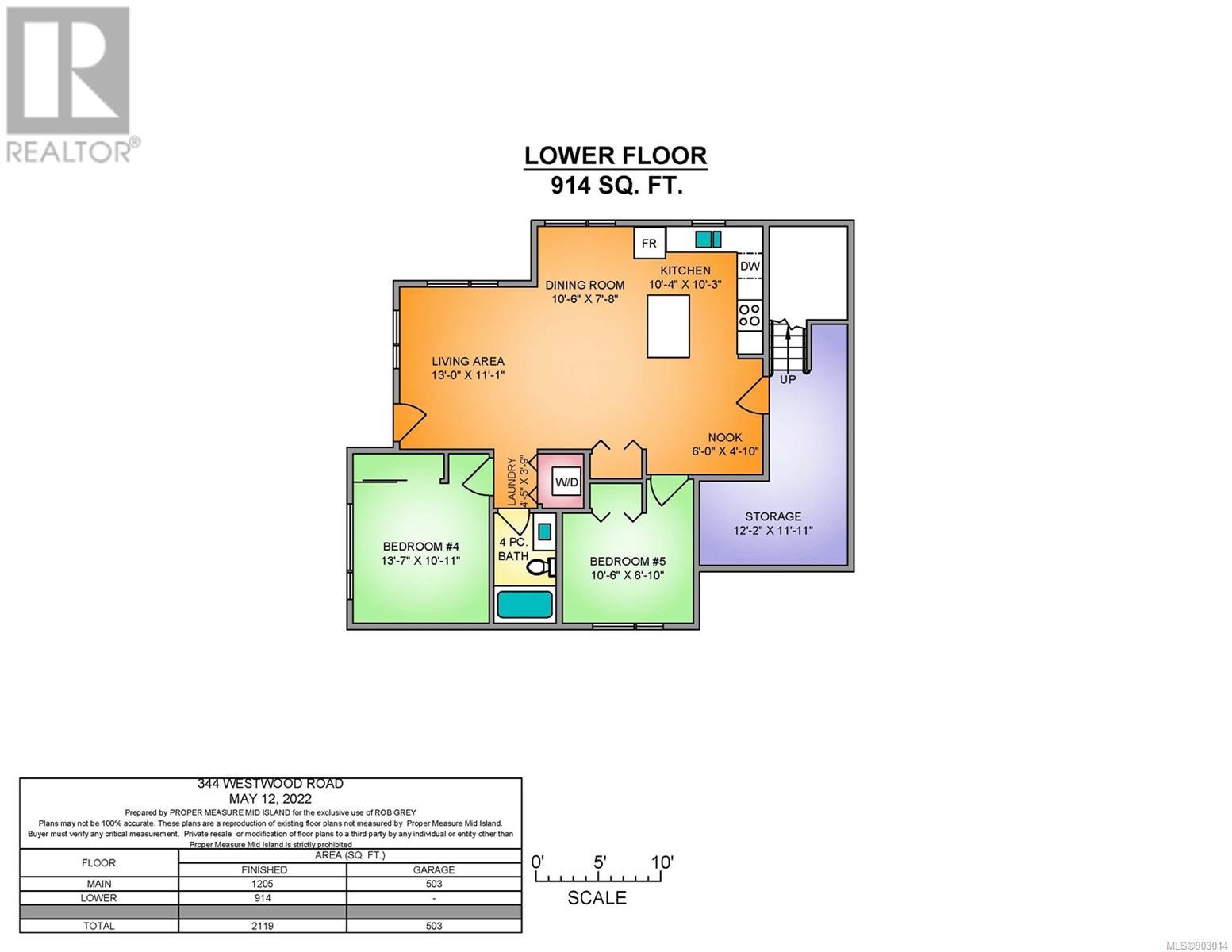
description: Located walking distance to Westwood Lake park and its beautiful meandering trails and beach areas, this new home boasts excellent features including a legal two bedroom suite. The main floor plan begins over 1200sf with 9’ smooth surfaced ceilings and an open plan to optimize light. The flooring is Elevation Berkshire vinyl plank and is complemented by white modern flush door cabinetry in the island kitchen with classy quartz counter tops and subway tile backsplash. The living and dining areas invite your accessorizing ideas. With 3 bedrooms and two full bathrooms including an ensuite, this completes the main level. Additional main floor features include on-demand hot water, natural gas furnace, HRV and large double garage. The lower level will surpass your expectations with well designed 2 bedroom suite, lots of windows, large living and dining room area, island kitchen, flex space and stacking laundry (+ separate meter). Quality finishing and high standards are the hallmark of Teaco Properties, a 2/5/10 warranty builder. The location also offers quick access to schools, pub, and recreational facilities. Price + GST. All measurements are approximate, and should be verified if important.
address: 344 Westwood Rd
postal code: V9R6S5
city: Nanaimo
latitude: 49.16614118
longitude: -123.99584706
constructed_date: 2022
type: House
sub_type: Single Family
size_interior: 2119 sqft
size_total: 5227 sqft
architectural_style: Contemporary
bedrooms: 5
bathrooms: 3
heating_type: Baseboard heaters, Forced air, Heat Recovery Venti
cooling_type: None
parking_type: Garage
parking_space_total: 2
features: Central location, Cul-de-sac, Other