SnapRealty.ca
Back
ID: 40776
MLS ID: 24411653
MLS Nubmer: 903311
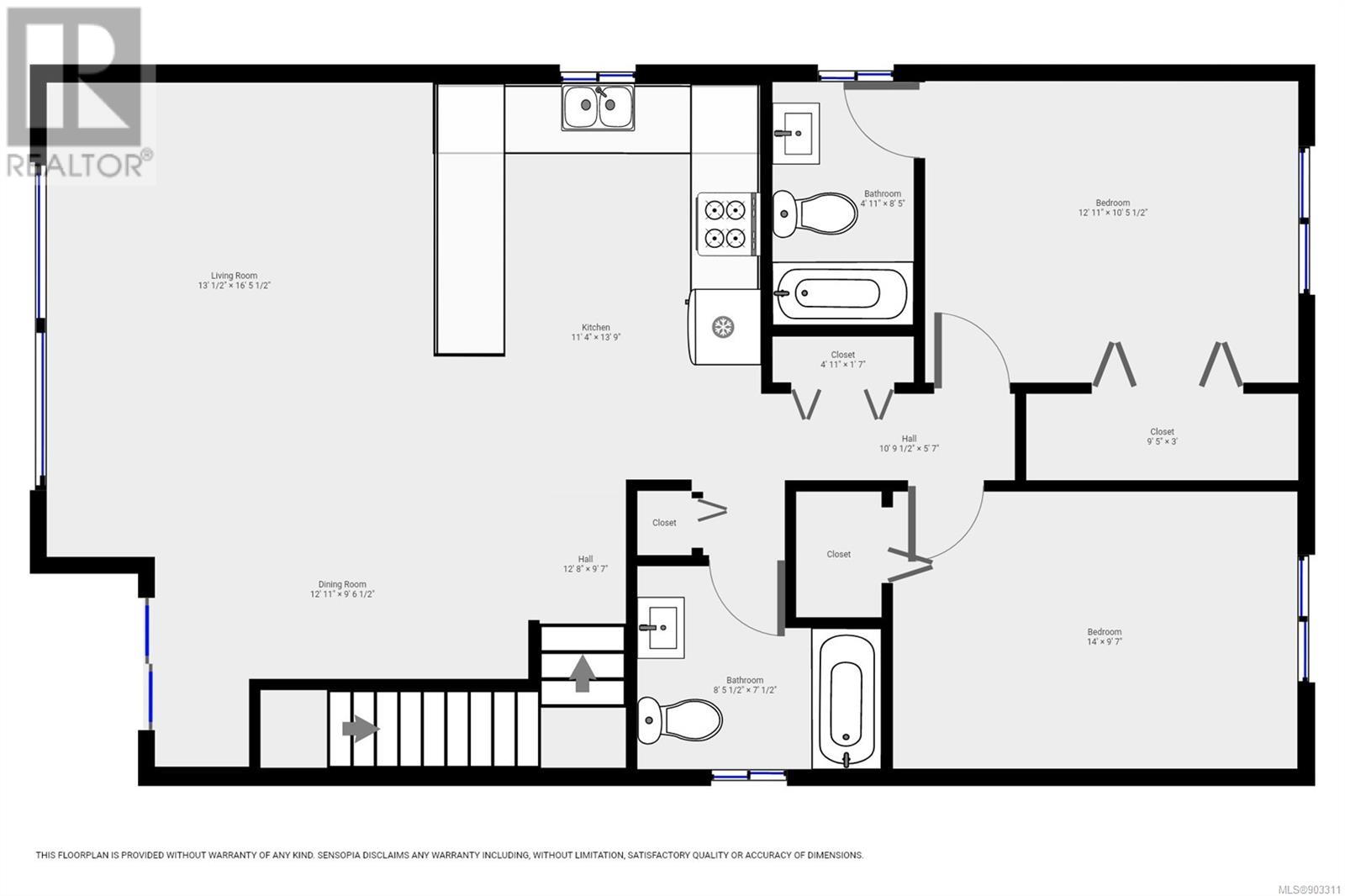
description: Looking for a smart investment? Here it is at 659 Petersen Road. This home built in 2017 has a legal suite and has a good track record as an Airbnb or monthly rental. Live upstairs in the 2 bedroom unit and rent out the 2 basement suite to help pay the mortgage or simply invest in the entire package. With the CR Golf and Country Club across the street and the new luxury Spa Hotel under construction this is a prime location. Upstairs you will find an open plan with custom hardwood kitchen and high end appliances, quality floors and beautiful converted antique vanities. Downstairs there’s a custom quality birch veneer kitchen, 2 bedrooms and it’s fully furnished including the washer and dryer. The house has a heat pump, garage and fabulous landscaping with plenty of plants and paths leading to the backyard gazebo. Sellers would like to rent back until the end of September.
address: 659 Petersen Rd
postal code: V9W3H6
city: Campbell River
latitude: 50.01830954
longitude: -125.26631950
constructed_date: 2017
type: House
sub_type: Single Family
size_interior: 1825 sqft
size_total: 3485 sqft
bedrooms: 4
bathrooms: 3
heating_type: Baseboard heaters, Heat Pump, (Electric)
cooling_type: Air Conditioned
features: Other, Marine Oriented
community_features: Pets Allowed, Family Oriented