SnapRealty.ca
Back
ID: 40754
MLS ID: 24411552
MLS Nubmer: R2689162
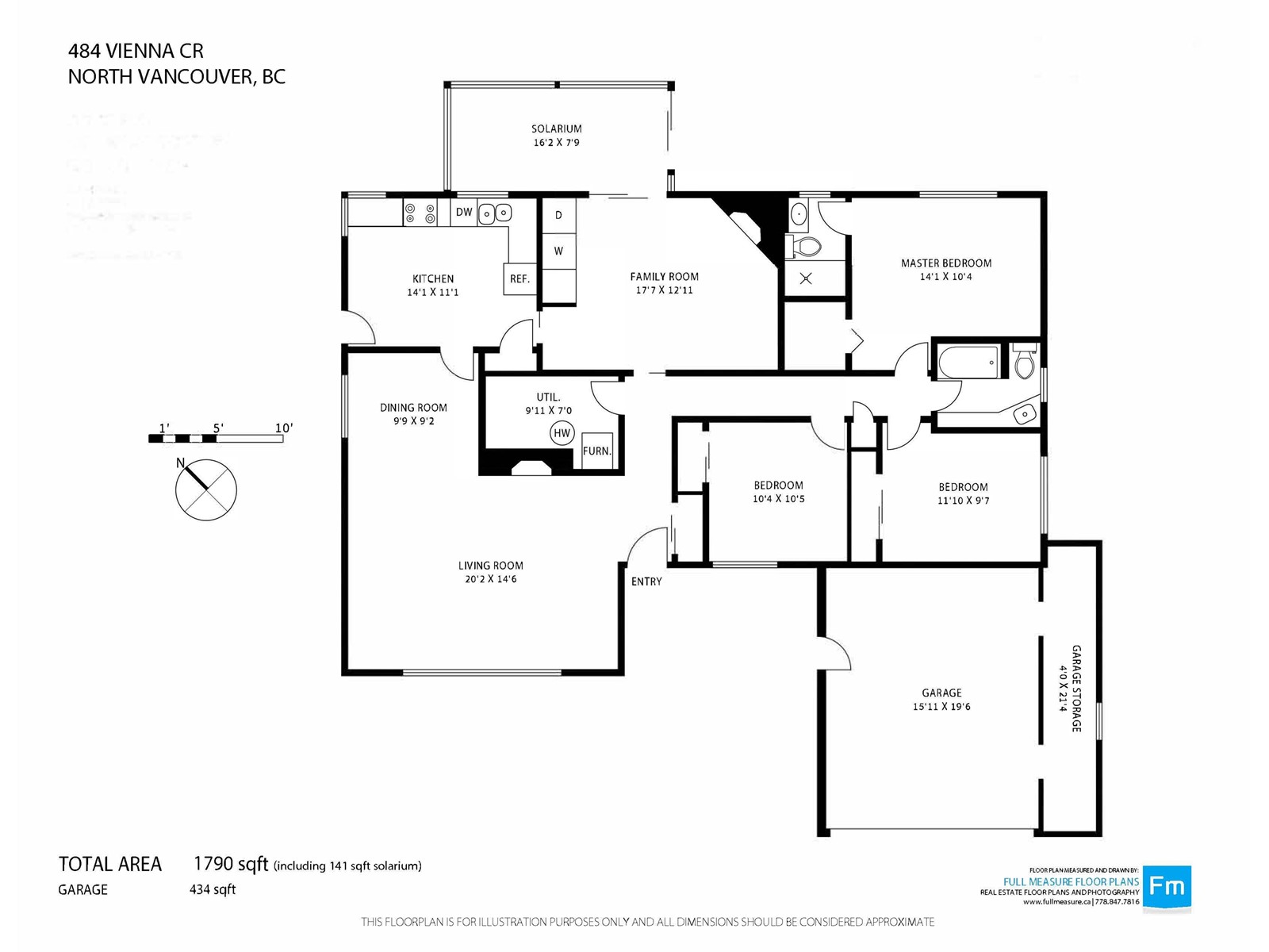
description: Perfectly situated, mid block and on the high side of the street, on one of Upper Delbrook?s finest streets, this 1950?s rancher is prime for redevelopment, as a renovation project or as a holding property. The lot is 8,050 square feet and has city, water and mountain views. The existing rancher is 1790 square feet and has 3 bedrooms and 2 bathrooms, spacious living, dining and family rooms and a kitchen that overlooks the backyard. Original oak hardwood floors. This is a primer property in a wonderful neighbourhood with lots of potential. Welcome home.
address: 484 VIENNA CRESCENT
postal code: V7N3B4
city: North Vancouver
latitude: 49.34796100
longitude: -123.08159800
constructed_date: 1959
type: House
sub_type: Single Family
size_interior: 1790 sqft
size_total: 8050 sqft
architectural_style: Bungalow
construction_style_attachment: Detached
bedrooms: 3
bathrooms: 2
fireplace_total: 2
appliances: All
view_type: City view, View of water, Mountain view
features: Private setting
amenities_near_by: Recreation, Shopping