SnapRealty.ca
Back
ID: 39761
MLS ID: 24402285
MLS Nubmer: R2688569
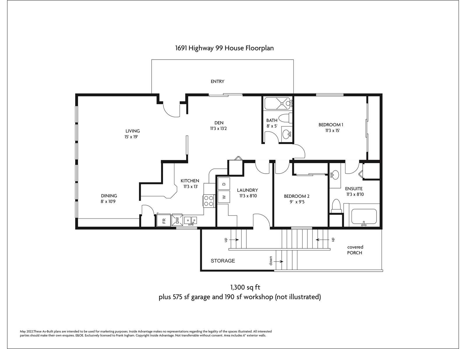
description: Considered one of the most iconic properties in Pemberton, this 198 acre estate is available for the first time in over 65 years. Located 5 min from downtown & spanning both sides of Hwy 99 with easy access on the Valley Trail. Featuring 110 level acres of fertile farmland plus lush evergreen & coniferous forest covering another 88 acres that could easily be cleared. A private dyke borders the north end while the entire north and south sides encompass over 9,170 ft alongside the Lillooet river with easy access. A 1,300 square ft 2 bed 2 bath home with covered storage plus sundeck & 2 vehicle carport along with covered RV storage plus attached workshop. A new subdivision is underway to create a 127.5 acre parcel on the north side of Hwy 99 & 71.1 acre on the south side. Giant Mt Currie views
address: 1691 HIGHWAY 99
postal code: V0N2L0
city: Pemberton
latitude: 50.31650300
longitude: -122.76478800
constructed_date: 1983
type: House
sub_type: Single Family
size_interior: 1300 sqft
size_total: 198 ac
construction_style_attachment: Detached
bedrooms: 2
bathrooms: 2
basement_type: Crawl space (Unknown)
fixtures: Drapes/Window coverings
storage: Storage Shed
appliances: All
view_type: View
features: Central location
amenities_near_by: Golf Course, Recreation, Shopping