SnapRealty.ca
Back
ID: 37432
MLS ID: 24384536
MLS Nubmer: 10252481
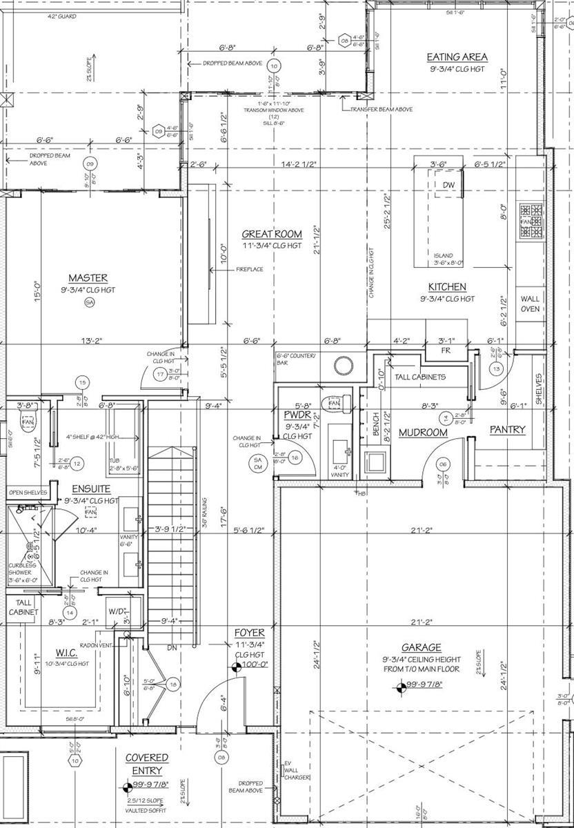
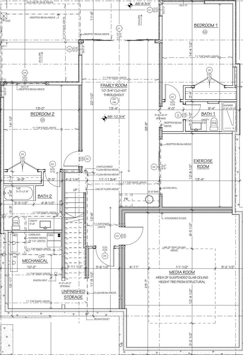
description: Welcome to the future entertainers dream, located in the desired Lakestone Development. Permit ready and to be built to perfection by the award winning Lakestone preferred builder Richmond Custom Homes. This immaculate walkout rancher features an open concept living space with a modern interior. Gorgeous chefs kitchen with SS appliances, gas stove and beautiful island. The living and dining room are bright and airy with plenty of natural light from the expansive windows. Private and spacious primary bedroom, includes walk-in closet and 5pc spa-like ensuite. The lower level features an incredible media room and is completed with a fitness room, 2 additional spacious bedroom and family room. Large private lot with room for a pool. Life doesn’t get any better living at Lakestone, offering amazing amenities with 28 kms of walking trails, multi-sport courts. The Lake Club and soon to be completed Centre Club. Located within minutes to shopping, schools, wineries, restaurants, golf, skiing, the Kelowna Airport and only 25 mins to dt Kelowna.
address: 10158 Beacon Hill Drive
postal code: V4V0A9
city: Lake Country
latitude: 50.02759900
longitude: -119.43474300
constructed_date: 2022
type: House
sub_type: Single Family
size_interior: 3408 sqft
size_total: 0.22 ac|under 1 acre
architectural_style: Ranch
bedrooms: 3
bathrooms: 4
heating_type: Forced air, (Natural gas)
storeys: 1
basement_type: Full (Finished)
parking_type: Attached Garage (2)
parking_space_total: 2
appliances: Dryer - Electric, Refrigerator, Washer, Gas stove(s), Dishwasher, Microwave, Central Vacuum
view_type: Lake view, Mountain view, View