SnapRealty.ca
Back
ID: 35415
MLS ID: 24370593
MLS Nubmer: R2685777
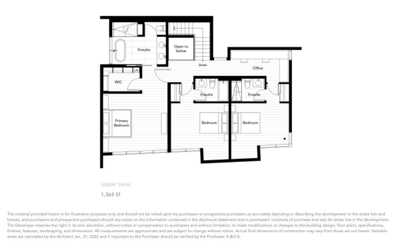
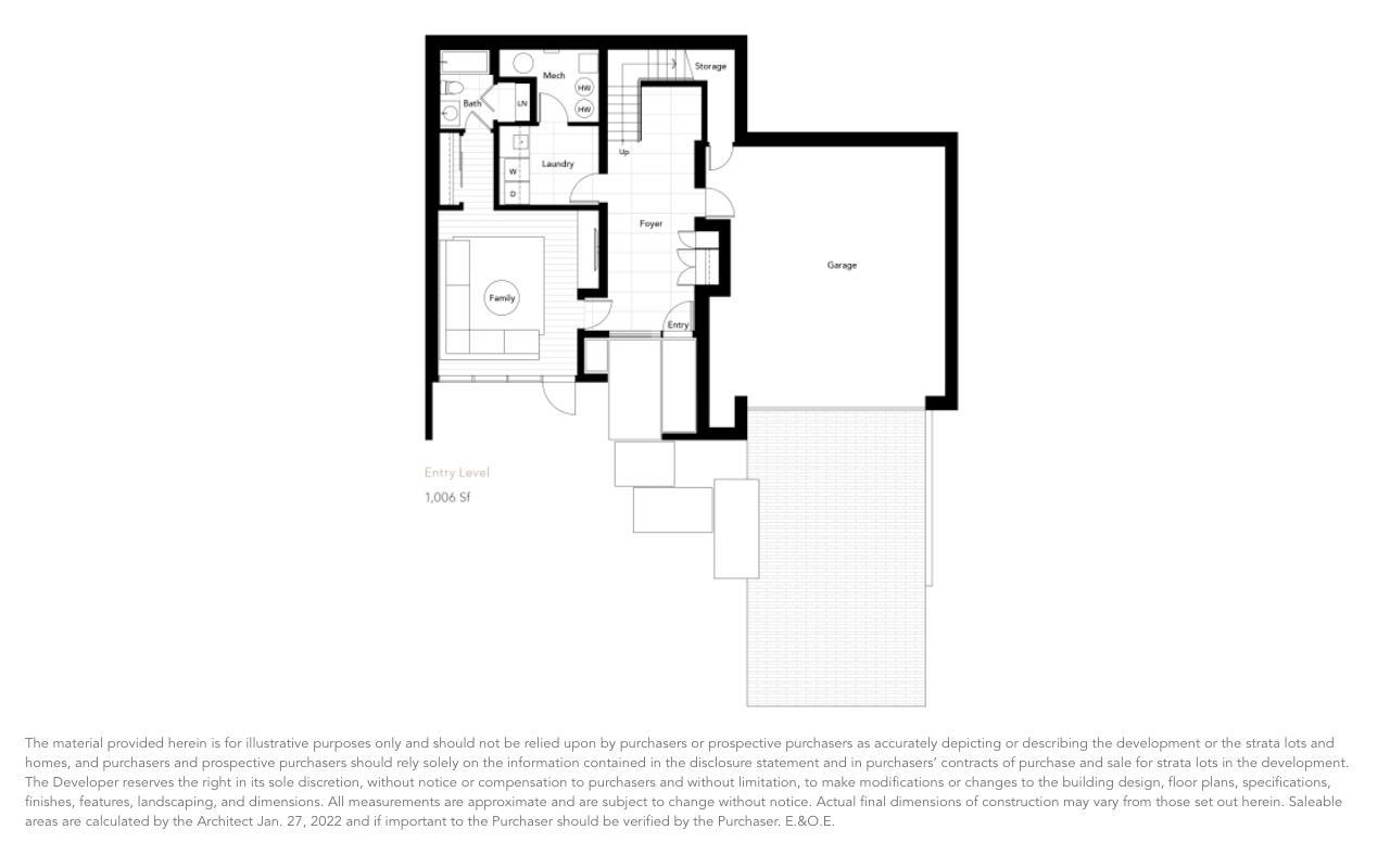
description: Holistically designed by award winning West Coast Modern architects, BattersbyHowat, 3261 Chippendale Road at The Collection by BattersbyHowat is the pinnacle of living in the architecturally significant neighbourhood of Uplands. This 3 bed + family room, 4.5 bath home offering 3,689 sf of open living space is positioned to take in light and views unique from its neighbor. The Skyline plan features exposed architectural concrete walls, hardwood flooring, designer kitchens with a full height backsplash in natural Vancouver Island marble and professional quality appliances by Gaggenau, and all south-facing bedrooms to take full advantage of views. With exceptional energy performance, The collection sets a new benchmark for sustainability in British Pacific Properties ? built home. E&OE
address: 3261 CHIPPENDALE ROAD
postal code: V0V0V0
city: West Vancouver
latitude: 49.35235400
longitude: -123.20668600
constructed_date: 2023
type: House
sub_type: Single Family
size_interior: 3689 sqft
size_total: 9159 sqft
construction_style_attachment: Detached
bedrooms: 3
bathrooms: 5
fireplace_total: 1
cooling_type: Air Conditioned
basement_type: Unknown (Finished)
fixtures: Drapes/Window coverings
appliances: Dishwasher
view_type: Ocean view