SnapRealty.ca
Back
ID: 34708
MLS ID: 24364497
MLS Nubmer: R2685417
description: Lovely custom built home in a quiet cul-de-sac location in the popular Holly neighbourhood just a few blocks from Holly Elementary. Spacious floor plan with large kitchen and family room with walk out to sunny west facing garden. This 5 bdrm family home has been updated with 3 new baths, including spa master ensuite with seamless glass shower with 3 jets, rain shower, and Grohe fixtures. Newer fence (2 years), new blinds, newer roof (8 years), appliances 7 years. This is a move in ready home any time!
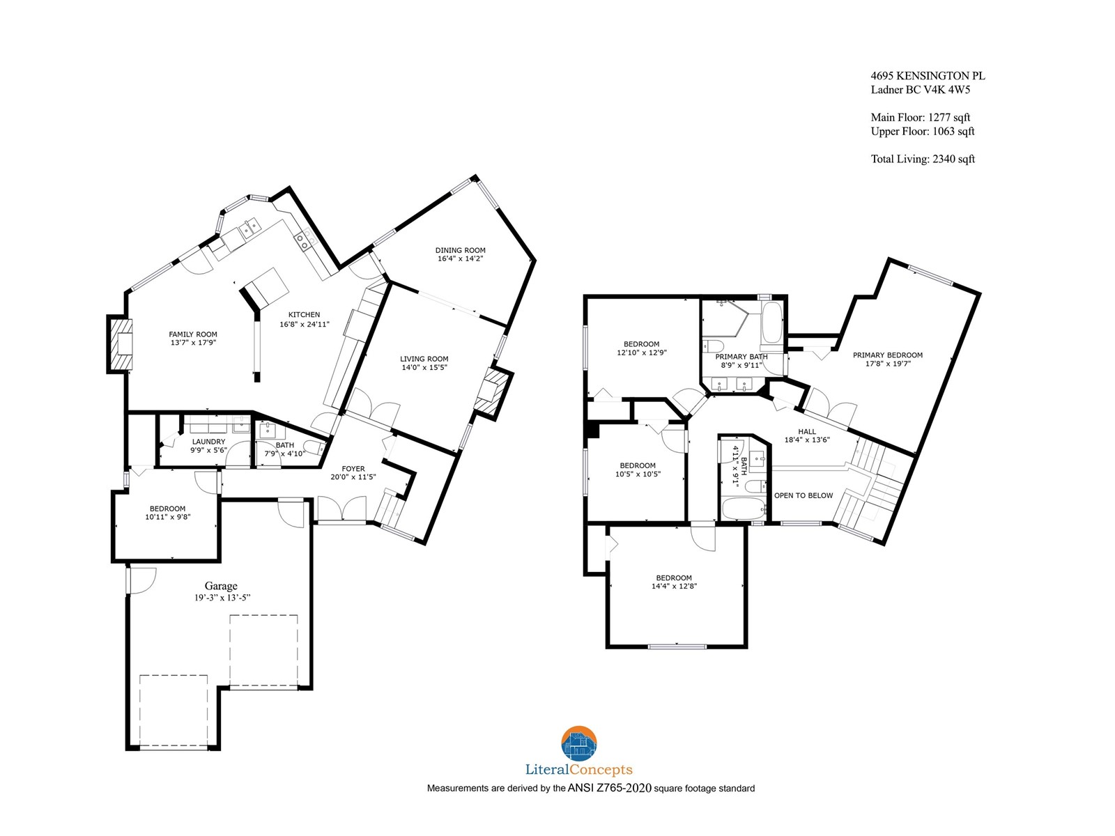
address: 4695 KENSINGTON PLACE
postal code: V4K4W5
city: Delta
latitude: 49.08851000
longitude: -123.04600900
constructed_date: 1990
type: House
sub_type: Single Family
size_interior: 2340 sqft
size_total: 5150 sqft
architectural_style: 2 Level
construction_style_attachment: Detached
bedrooms: 5
bathrooms: 3
fireplace_total: 2
storage: Storage Shed
appliances: All
features: Cul-de-sac
amenities_near_by: Recreation, Shopping