SnapRealty.ca
Back
ID: 34021
MLS ID: 24359022
MLS Nubmer: 902089
description: COMPLETELY RENOVATED FAMILY HOME by long term owners with high attention to quality details, 4-5 bedrms, 3 amazing bathrms, custom features, ground floor level access easy suited to a 1 or 2 bedrm legal suite & already built to two family building codes with extra insulation sound proofing and drywall. Manicured corner lot boasts a sunny level fenced yard with sheds, RV parking pot. off the cul de sac. The family will love the wonderful above ground pool to play in the sunny all day plus an entertaining sized patio and large private deck watching from above off the main living level. Current R2 zoning allows for two family living, carriage homes, daycare and would ideally suit a two family/party purchase or rental investment with strong tenant demand or investors wishing to invest for the near future of potential development with the neighbours. City Centre Zoning of 4-6 stories within Langford's walkability zone to downtown Langford's shops & stores, schools, transit & amenities.
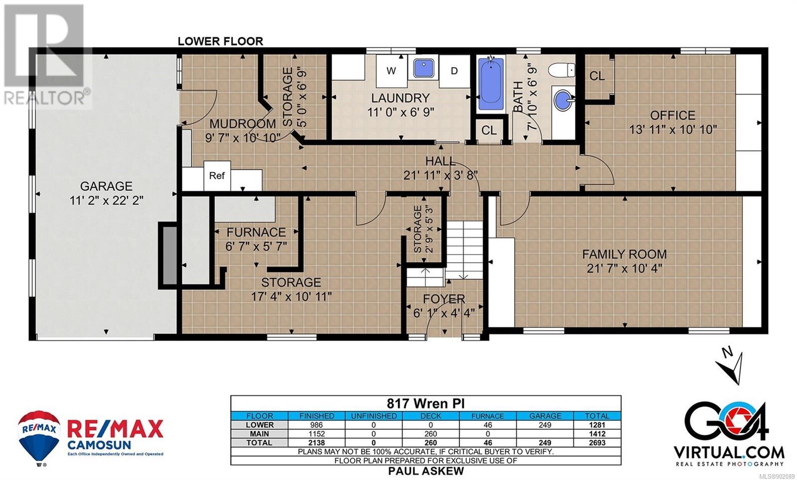
address: 817 Wren Pl
postal code: V9B3B7
city: Langford
latitude: 48.45154670
longitude: -123.50139653
constructed_date: 1972
type: House
sub_type: Single Family
size_interior: 2218 sqft
size_total: 7405 sqft
bedrooms: 4
bathrooms: 3
fireplace_total: 1
heating_type: Baseboard heaters, Forced air, (Oil), (Electric)
cooling_type: None
structure: Shed, Patio(s)
features: Central location, Cul-de-sac, Level lot, Corner Site, Irregular lot size, Other