SnapRealty.ca
Back
ID: 31445
MLS ID: 24343879
MLS Nubmer: R2683244
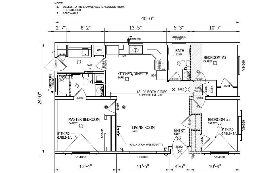
description: Brand new 3 BR, 2 bath SRI home located in Phase 3 of Big Maple, on a large corner lot. This well laid out 960 square ft home features an open floor plan with 9 foot ceilings, solid surface countertops throughout, separate entry into laundry room, stainless steel appliances, gas range, gas furnace, and custom plank flooring. The upgraded window package allows for natural light to easily shine into the living space. This is a unique opportunity get a detached home without the upkeep including a 1 Yr manufacturer's warranty, 10 year structural warranty, 1 year home insurance & 1 year Telus package. This private and quiet 55+ neighbourhood is located minutes from transit options, beautiful beaches, coffee shops, grocery stores, and other great shopping spots. You won't want to miss this one.
address: 87 4496 SUNSHINE COAST HIGHWAY
postal code: V7Z9C3
city: Sechelt
latitude: 49.44290800
longitude: -123.71790900
constructed_date: 2022
type: Mobile Home
sub_type: Single Family
size_interior: 960 sqft
construction_style_attachment: Detached
bedrooms: 3
bathrooms: 2
basement_type: Crawl space (Unknown)
appliances: Dishwasher, Refrigerator, Stove
amenities: Laundry - In Suite
community_features: Adult Oriented