SnapRealty.ca
Back
ID: 19675
MLS ID: 24260258
MLS Nubmer: R2675717
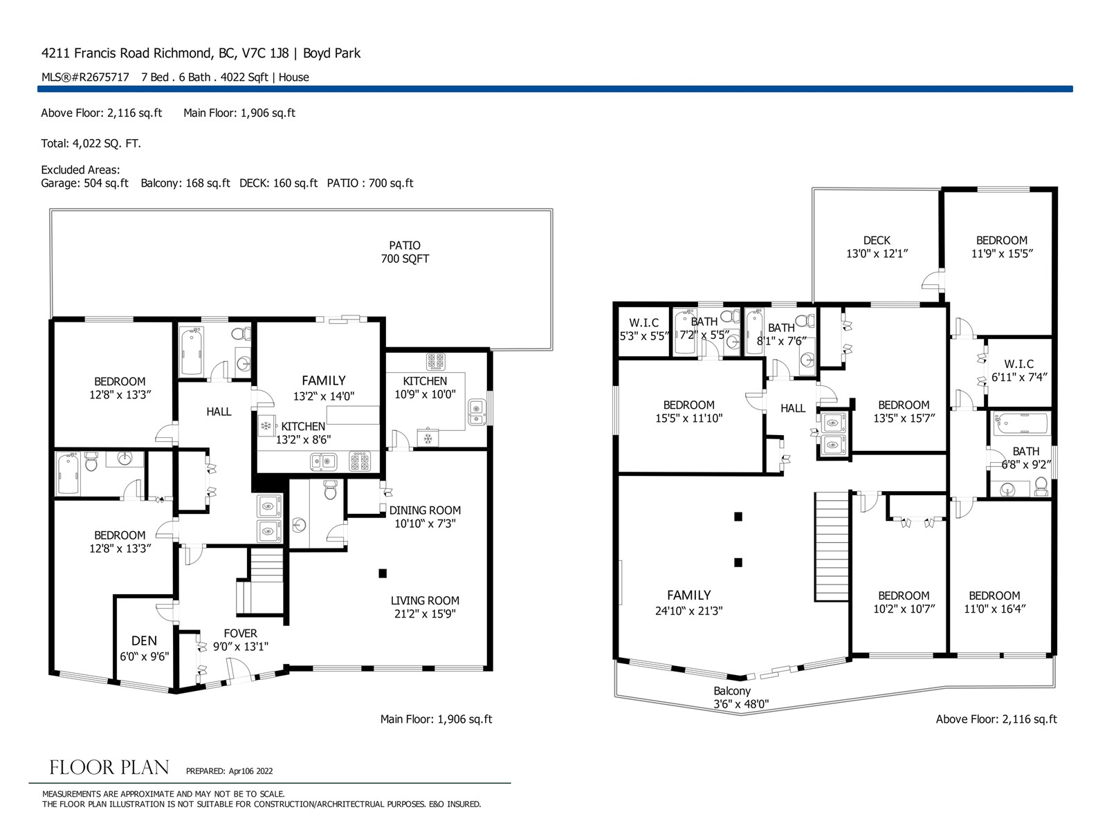
description: Beautiful south facing home with amazing park view and abundant sunlight in West Richmond's most convenient location. This house with 7 bedrooms 6 baths is well maintained and extensively renovated, ready to move in! Down 2 bedroom suite with separate entry brings good rental income. Pls note that this land can be subdivided into two lots to build two detached properties, with HUGE LAND VALUE! Ideal for a large family or investor and offers many possibilities. Walking distance to schools, park, shopping mall and transits. Don't miss! 24 hours notice for private showing.
address: 4211 FRANCIS ROAD
postal code: V7C1J8
city: Richmond
latitude: 49.14890900
longitude: -123.17845800
constructed_date: 1984
type: House
sub_type: Single Family
size_interior: 4022 sqft
size_total: 8674 sqft
architectural_style: 2 Level
construction_style_attachment: Detached
bedrooms: 7
bathrooms: 6
appliances: All
view_type: View