SnapRealty.ca
Back
ID: 17776
MLS ID: 24245358
MLS Nubmer: R2674519
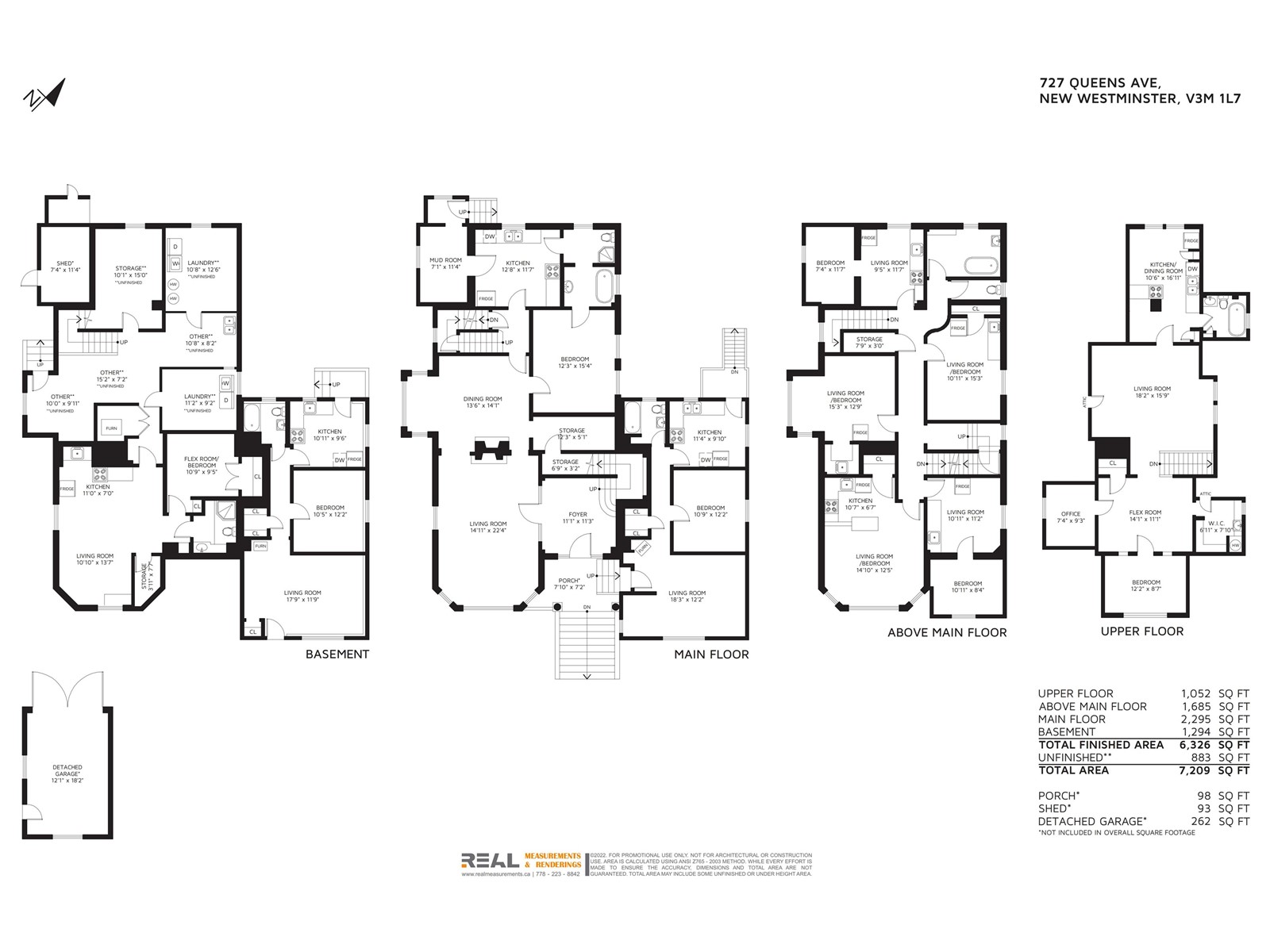
description: An excellent opportunity to own this 7209 sq/ft Edwardian Mansion(fully rented) to generate income. This multi-unit(9 legal units) character building is surrounded by other large historic character homes and sits on a large 60x120ft lot. Ideal for principal use and keep some tenants as income property for future development. Fire code and safety condition in good working order, features: fir, oak floors, bay windows with stained glass, clawfoot tubs, high ceilings, mosaic tiles, fire place and much more (please refer to updates list attached to listing). Cap rate of 3.5% with great rental upside, rents well below market. Excellent walking distance to Douglas college, skytrain, New Westminster Quay, Queens park and uptown, downtown restaurants & shopping!
address: 727 QUEENS AVENUE
postal code: V3M1L7
city: New Westminster
latitude: 49.20570300
longitude: -122.91617300
constructed_date: 1912
sub_type: Single Family
size_interior: 7209 sqft
size_total: 7200 sqft
bedrooms: 6
bathrooms: 6
basement_type: Full (Partially finished)
amenities: Shared Laundry