SnapRealty.ca
Back
ID: 16673
MLS ID: 24238073
MLS Nubmer: R2673784
description: * PREC - Personal Real Estate Corporation. You will love love love the 20X28' heated detached garage with concrete floor & a tall garage door leading to rear alley access. The white picket fence and mature trees adds charm and curb appeal to this great mobile on land with room to park an RV and located on a quiet street. Inside there are 2 bedrooms & a den plus a bathroom with a jetted bathtub and newer stackable laundry pair. A nice open kitchen with fridge, stove and a dishwasher plus a great mudroom, 2 sundecks and a garden shed. Full RV hookup with water, sewer and 30 amp power. This home has been well cared for with lots of updates!
address: 8815 76 STREET
postal code: V1J2Z5
city: Fort St. John
latitude: 56.23501960
longitude: -120.80261931
constructed_date: 1972
type: Manufactured Home/Mobile
sub_type: Single Family
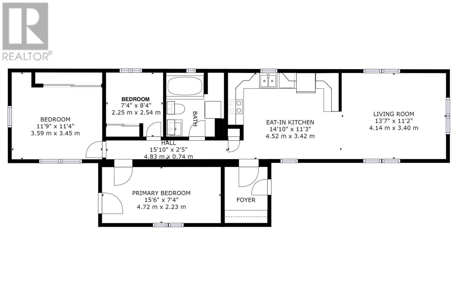
size_interior: 899 sqft
size_total: 7350 sqft
construction_style_attachment: Detached
bedrooms: 2
bathrooms: 1
heating_type: Forced air (Natural gas)
storeys: 1
basement_type: Crawl space
parking_type: Open
appliances: Washer, Dryer, Refrigerator, Stove, Dishwasher, Jetted Tub