SnapRealty.ca
Back
ID: 15790
MLS ID: 24232538
MLS Nubmer: R2673217
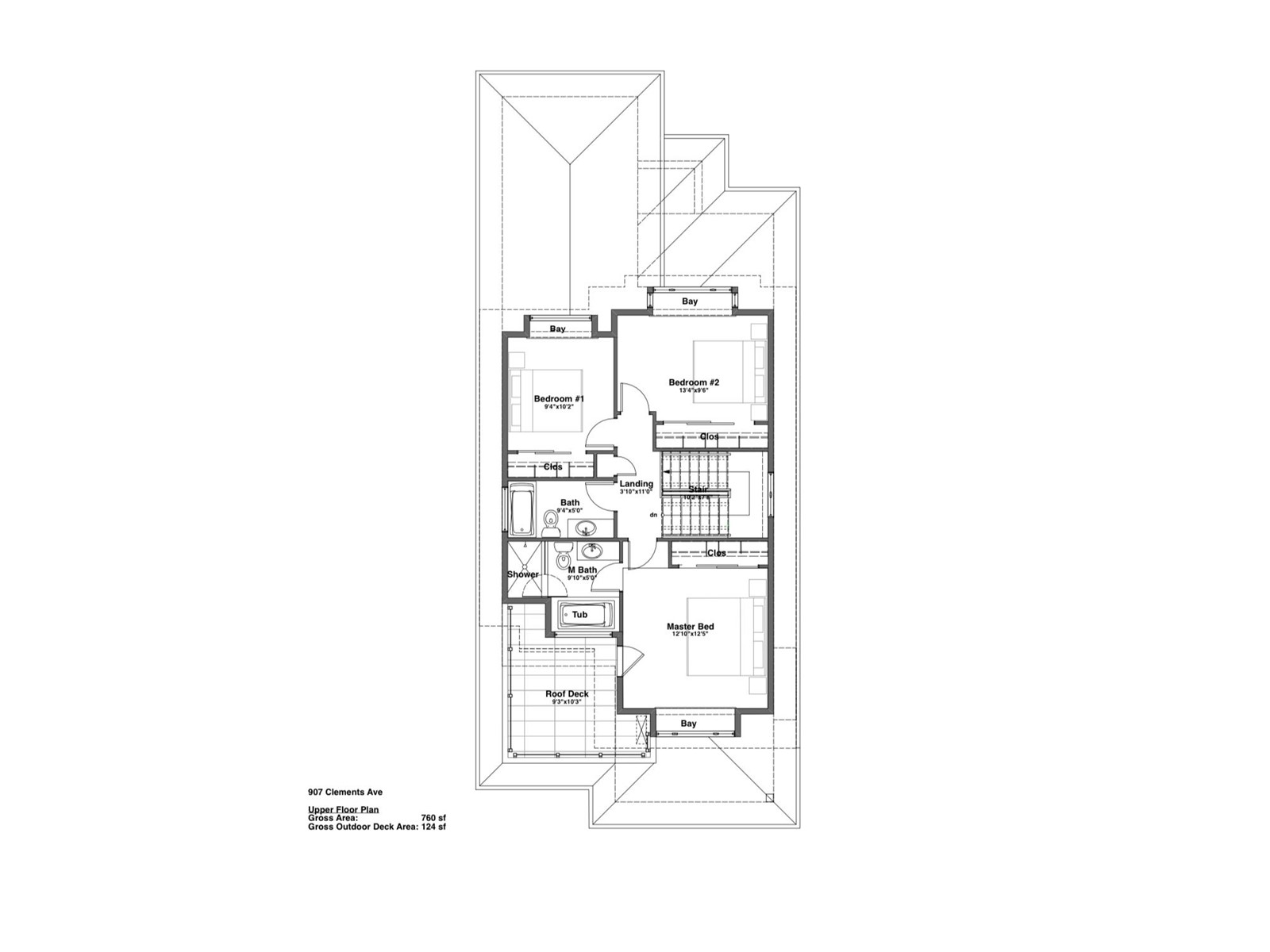
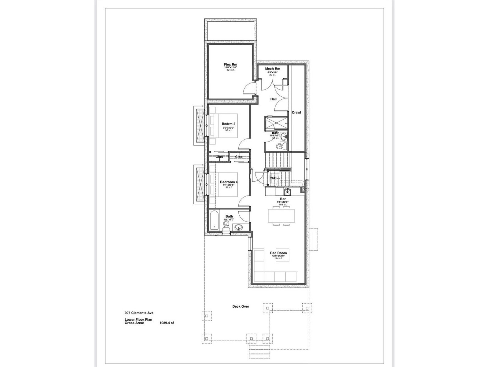
description: Excited to present 907 Clements Avenue. Brand new home scheduled to complete in Fall 2022. This home is proudly being built by reputable "LDJ Contracting" and designed by Kent Halex in the sought after Canyon Heights area of North Vancouver. Almost 3,000 Sqft of elegant living space on a nearly 4,000 Sqft lot located in a quiet family friendly neighborhood near fantastic elementary schools and the newly built Handsworth Secondary school. Main level features an open floorplan with a large kitchen & dining area along with a large cozy living area. Walkout to your south facing spacious decks and enjoy the beautiful Mountain views. 3 bedrooms upstairs with a 95 Sqft walkout deck from your master bedroom. 2 bed & 2 bath basement with a large rec room is perfect for guests & entertainment.
address: 907 CLEMENTS AVENUE
postal code: V7R2K8
city: North Vancouver
latitude: 49.35785900
longitude: -123.09423200
constructed_date: 2022
type: House
sub_type: Single Family
size_interior: 2866 sqft
size_total: 3960 sqft
architectural_style: 2 Level
construction_style_attachment: Detached
bedrooms: 5
bathrooms: 5
basement_type: Full (Unknown)
view_type: Mountain view