SnapRealty.ca
Back
ID: 14924
MLS ID: 24227302
MLS Nubmer: R2672628
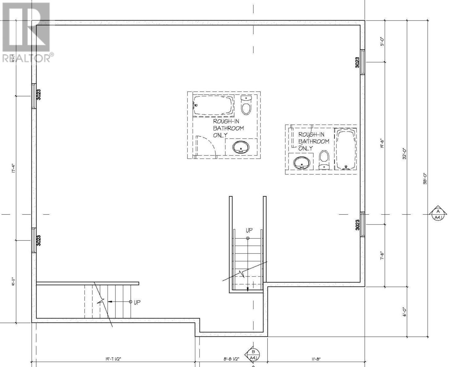
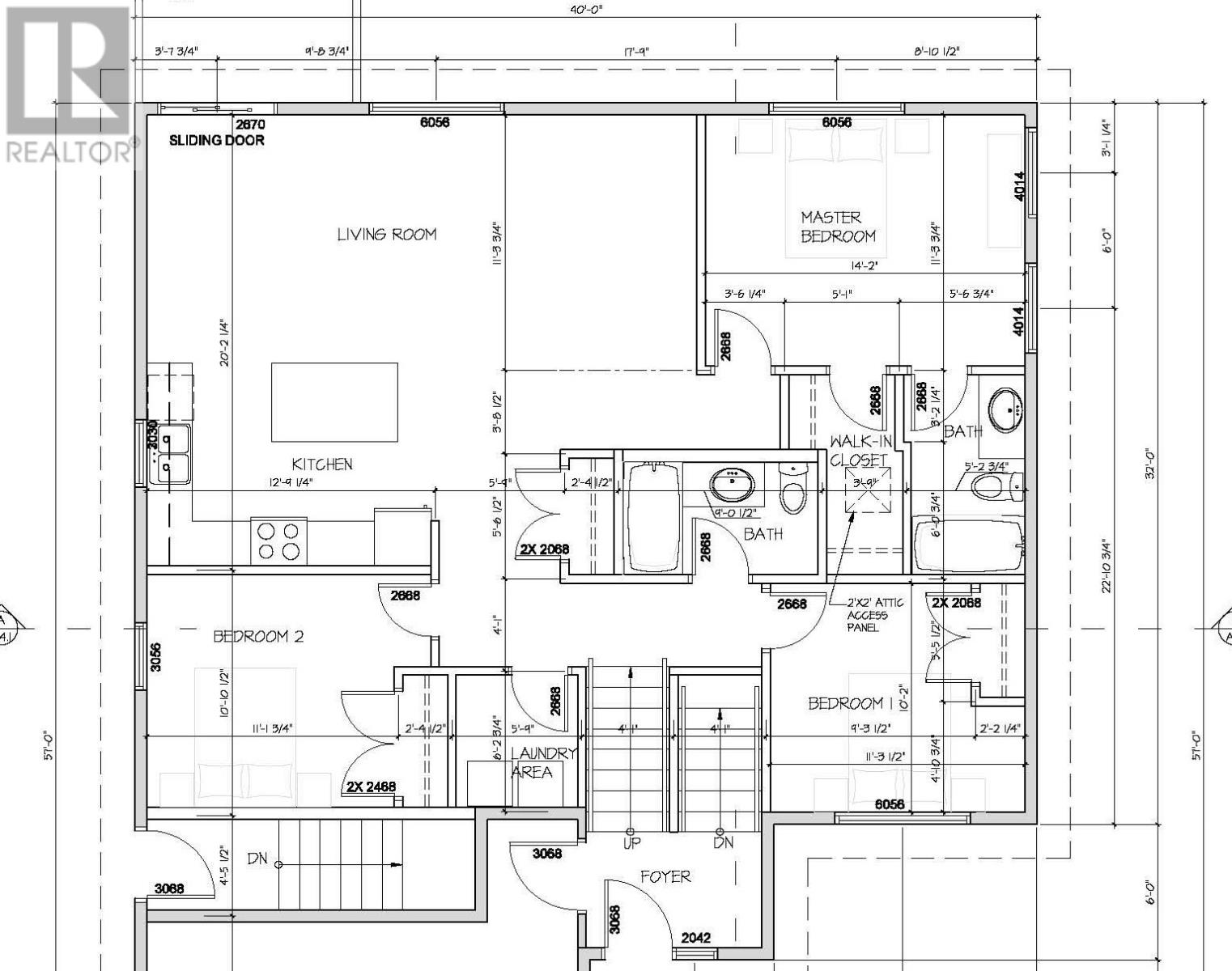
description: * PREC - Personal Real Estate Corporation. New home under construction. This cottage style influenced home is awaiting your pick of finishing touches and colours. You get to pick the colour to paint the exterior's weather resistant smart siding. Enjoy many high-end finishing including crown moulding, 9' ceilings, light coloured cabinets, and quartz counter-tops. Enjoy the extra features such as a large entry, main floor laundry, master bedroom with ensuite and walk-in closet, extra large heated garage and so much more. The front yard will be completed with sod. The unfinished basement has its own separate entrance and 2 additional bathrooms are already roughed in. GST is included in the price.
address: 10220 115 AVENUE
postal code: V1J0P8
city: Fort St. John
latitude: 56.26147429
longitude: -120.85297386
constructed_date: 2022
type: House
sub_type: Single Family
size_interior: 1350 sqft
size_total: 5831 sqft
construction_style_attachment: Detached
bedrooms: 3
bathrooms: 2
heating_type: Forced air (Natural gas)
storeys: 2
basement_type: Full (Unfinished)
parking_type: Garage