| ID: | 13214 |
|---|---|
| MLS ID: | 24213434 |
| MLS Nubmer: | 10249581 |
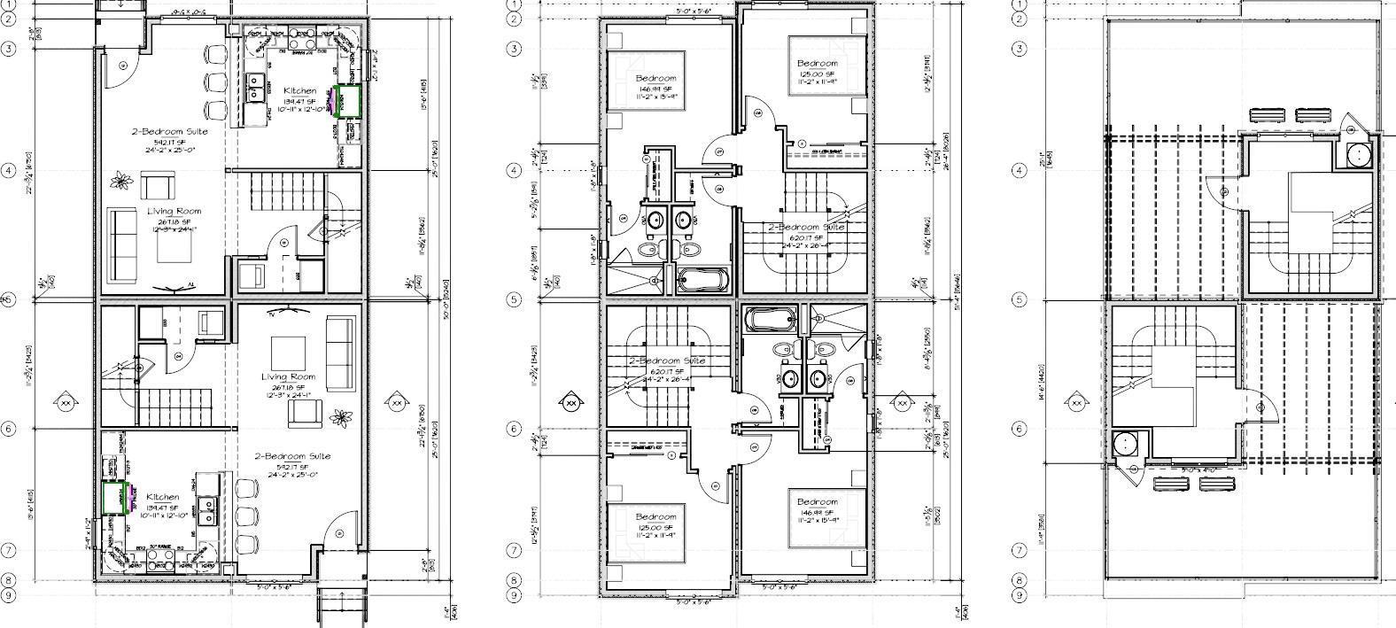
| description: | Lot #27 Tapton Avenue is ready for a single family home or build a front to back duplex on this great lot in the beautiful town of Princeton. This lot will be serviced for the new owner and ready to be built on. Duplex drawings have already been done for you and include roof top patios, maximium use of space and a contemporary urban design. You can bring your own builder or if you prefer the seller can build for you. Live in one side and rent the other to help with those mortgage payments or hold it as an investment property in a town that needs rentals as it grows. The property is well situated and sustained no damage or impact from the 2021 floods. Don't wait on this one. |
| address: | 27 Tapton Avenue |
| postal code: | V0X1W0 |
| city: | Princeton |
| latitude: | 49.45903800 |
| longitude: | -120.50594100 |
| type: | No Building |
| sub_type: | Vacant Land |
| size_total: | 0.065 ac|under 1 acre |
| utility_type: | Cable (Available), Natural Gas (At Lot Line), Sewer (At Lot Line), Telephone (At Lot Line), Electricity (At Lot Line), Water (At Lot Line) |