SnapRealty.ca
Back
ID: 12478
MLS ID: 24207783
MLS Nubmer: R2670999
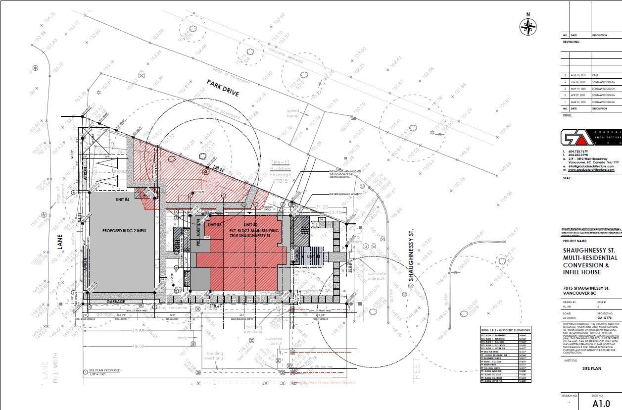
description: builder, developer, investor alert! Prime location! Rare corner lot! OakPark Park just beside like back yard w Marploe Oakridge Community Center, gym, playground, tennis court, childcare! 2 minutes walk to Sir Wilfrid Laurier Elementary & Churchill Churchill HighSchool! Close to everything! City approved 6,550sf 4 homes! 30% more than RS1 FSR! DP-prior 2 processing, almost ready to build! save a lot time & money for re-zone, application, and design! 4 units have treet-side access! house is well maintained! Upstairs two-storey 3-bedroom unit with stable tenants! The downstairs 2-bedroom unit has separate access and can be rented or lived in!
address: 7815 SHAUGHNESSY STREET
postal code: V6P3X7
city: Vancouver
latitude: 49.21395500
longitude: -123.12901800
constructed_date: 1928
type: House
sub_type: Single Family
size_interior: 2827 sqft
size_total: 7118 sqft
architectural_style: 2 Level
construction_style_attachment: Detached
bedrooms: 5
bathrooms: 3
fireplace_total: 1
basement_type: Unknown (Finished)
appliances: All
view_type: View
features: Central location
amenities_near_by: Shopping