| ID: | 10702 |
|---|---|
| MLS ID: | 24197955 |
| MLS Nubmer: | 898143 |
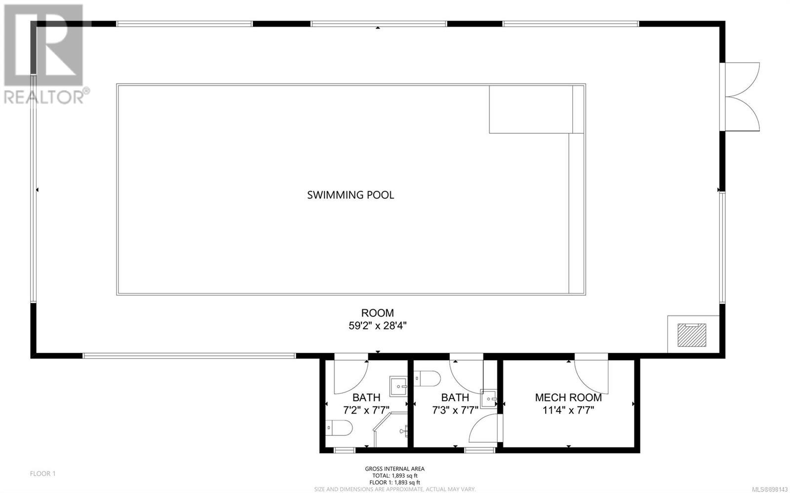
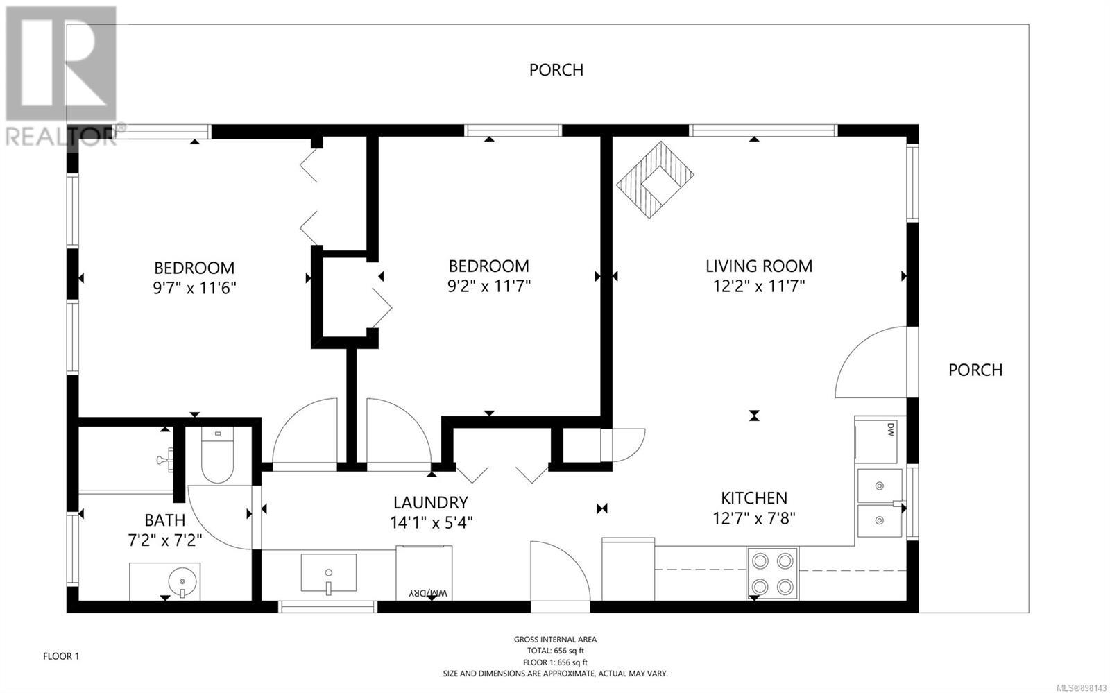
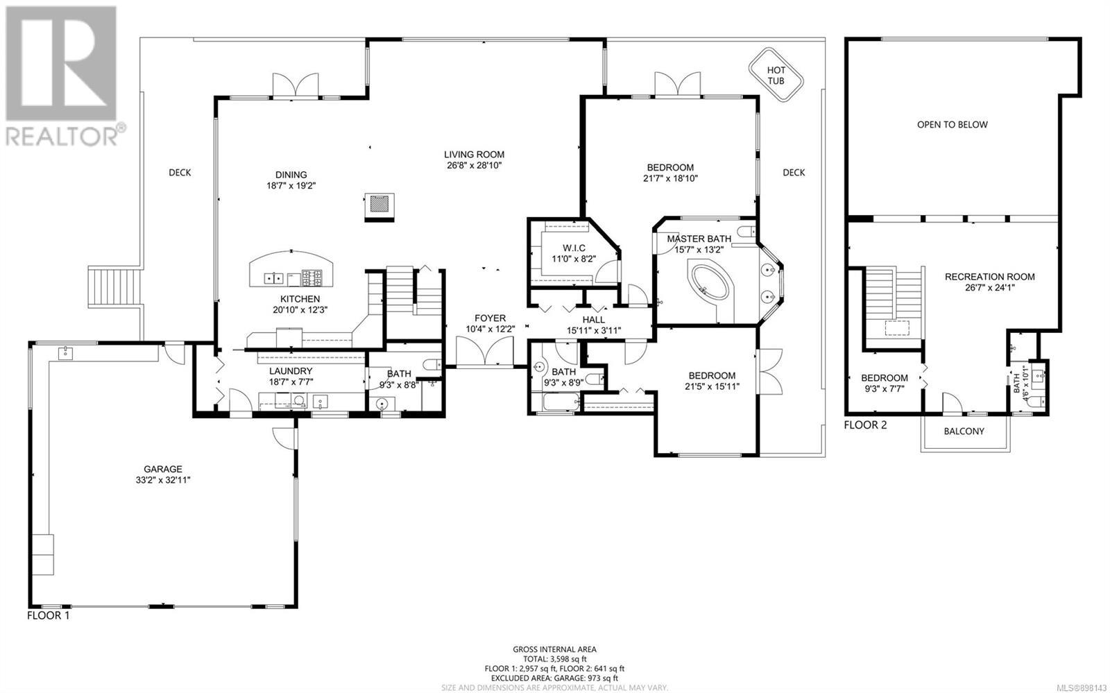
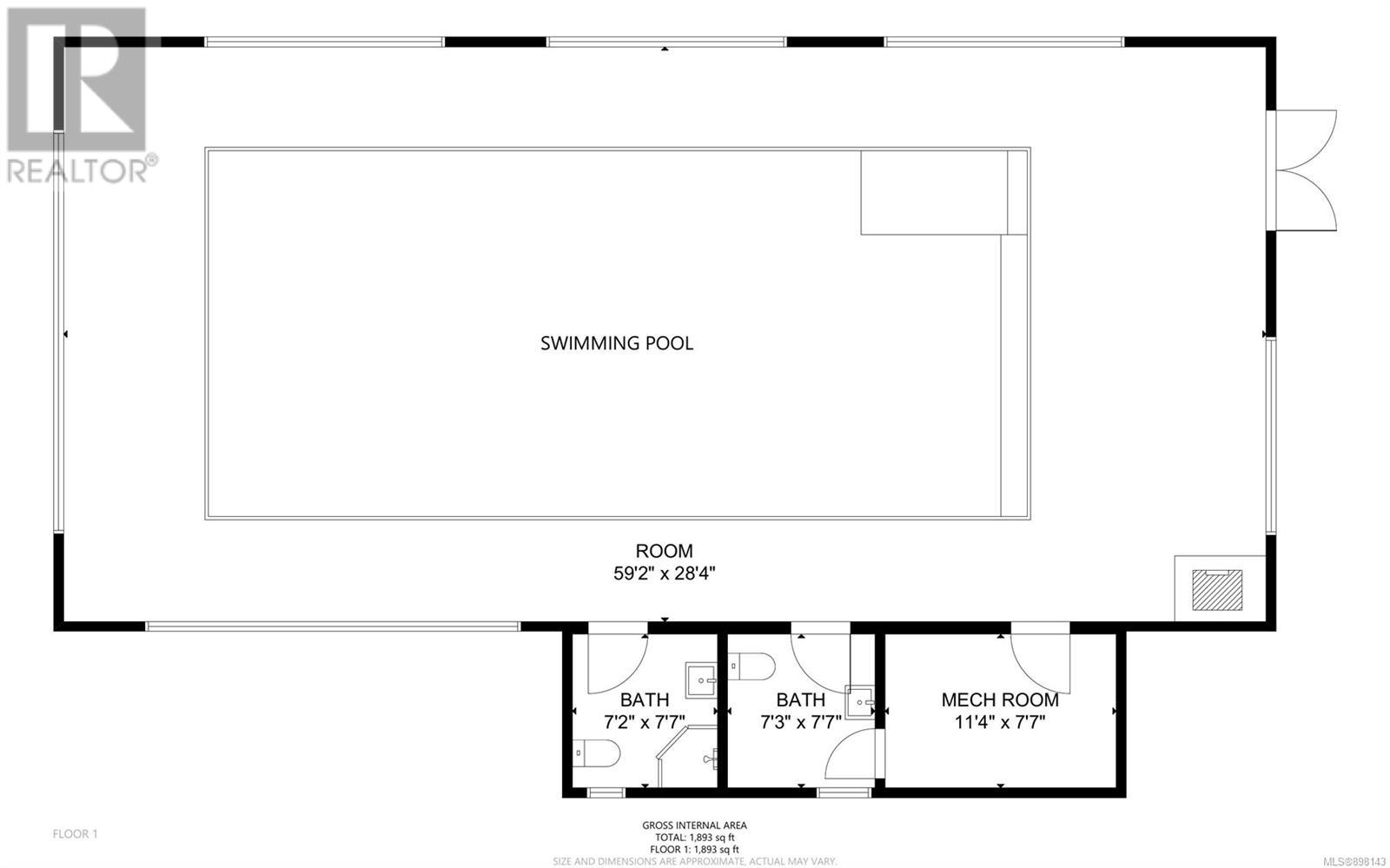
| description: | This truly unique island property beacons your attention! Proudly sitting on over 23 private acres of walkout waterfront la is this true gem of a property. The nearly 3600 sq ft 2 bedroom, 4 bathroom well built home with surrounding decks to entertain on, was designed to amplify and soak in the ocean views and elegance that completely surrounds you. With approx 1130 feet of ocean frontage you will be sure to enjoy ocean activities with your own 40' dock and concrete boat launch. With an established and fenced Orchard in place, you can sit back and enjoy the yearly produce yields. You will also find a 2 bdrm guest home, a massive workshop, a heated Poolhouse, 196 Solar Panel Array, greenhouse with fenced garden and raised beds, 2 wells and so very much more to explore. Gabriola Island is a magical island of nature, arts, and inspiration and is accessible by 20 min ferry from Nanaimo and Gulf Air Seaplane service directly from YVR and Vancouver inner city harbour. Bring your boat or bring a helicopter as all provide quick and easy access. Verify all data and measurements if deemed important. |
| address: | 3223 Coast Rd |
| postal code: | V0R1X7 |
| city: | Gabriola Island |
| latitude: | 49.14506995 |
| longitude: | -123.69901063 |
| constructed_date: | 2005 |
| type: | House |
| sub_type: | Single Family |
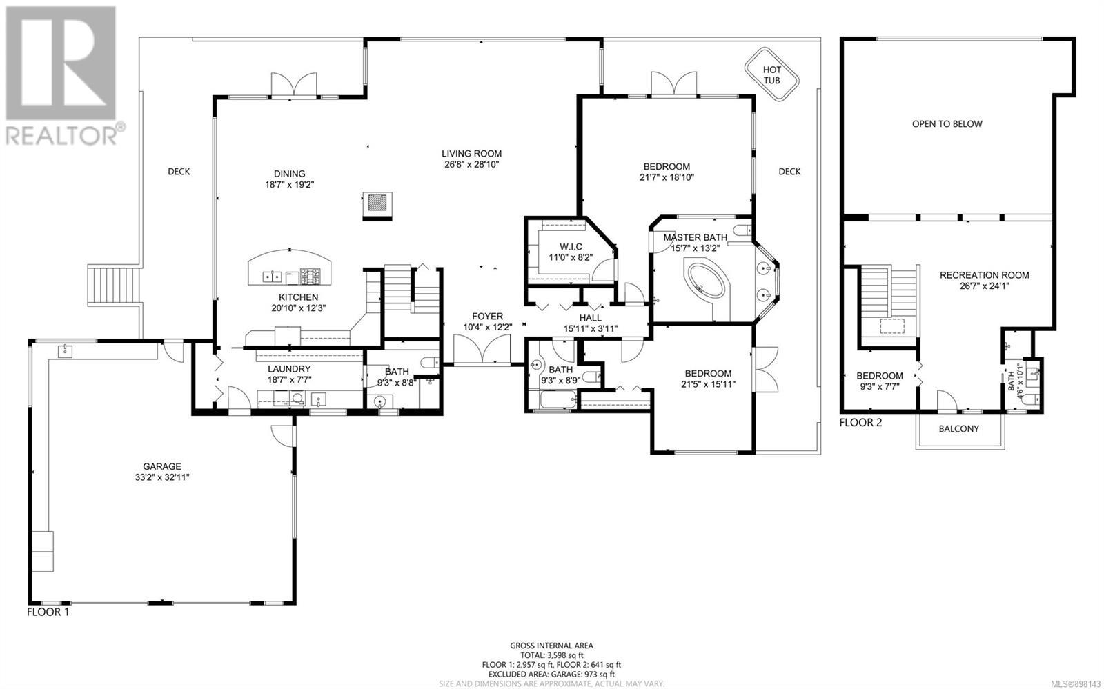
| size_interior: | 6930 sqft |
| size_total: | 23.17 ac |
| architectural_style: | Contemporary |
| bedrooms: | 4 |
| bathrooms: | 5 |
| fireplace_total: | 1 |
| heating_type: | (Solar), (Wood), (Other) |
| cooling_type: | None |
| structure: | Greenhouse, Shed, Workshop |
| view_type: | Ocean view |
| features: | Acreage, Level lot, Park setting, Private setting, Southern exposure, Wooded area, Other, Marine Oriented, Moorage |